КУПИ ЗА EUR 618 на месец!
За да не изпуснете този имот, обадете се сега и цитирайте този код: 27076.
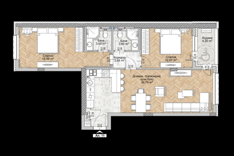
БЕСТ СЕЛЪРС предлага на Вашето внимание тристаен апартамент в ж.к. Люлин 8 .
С възможност за закупуване на паркоместа и гаражи.
РАЗПРЕДЕЛЕНИЕ: Входно антре, просторна всекидневна с кухненски бокс и трапезария, две спални, едната от които със собствен санитарен възел, отделен санитарен възел, сладково помещение и тераса.
СГРАДА: Сградата се очаква да бъде въведена в експлоатация до края на 2028 година. Етаж 2/9.
СХЕМА НА ПЛАЩАНЕ: 10% при сключване на предварителен договор, 30% при достигане на кота 0, 30% при достигане на етап АКТ 14, 30% при сключване на нотариален акт. Гъвкави опции за прехвърляне - възможност и при АКТ 16.
ЛОКАЦИЯ: ж.к. Люлин 8 . Апартаментът се намира в новострояща сграда, разположена на пешеходно разстояние от ДГ 139 Панорама , 56 СУ Проф. Константин Иречек , 40 СУ Луи Пастьор и супермаркет Т Маркет . В непосредствена близост до ДГ 73 Маргарита , Метростанция Люлин и Метростанция Сливница , хипермаркет Технополис и хипермаркет Билла . В районът са ситуирани множество големи и малки хранителни магазини, зелени площи и спирки на градски транспорт. Свободно междублоково пространство за паркиране. Бърз и лесен достъп до бул. Сливница и бул. Панчо Владигеров .
---
БЕСТ СЕЛЪРС е Вашият партньор при сключването на сделка с недвижим имот от първия оглед до финалния подпис. Екипът ни от професионалисти е твърдо решен да промени представата Ви за пазара на недвижими имоти и да Ви остави с приятни емоции след приключването на една от най-важните сделки в живота Ви. Можете да разчитате на нас за ПЪЛНО съдействие в търговските преговори, абсолютно прозрачна обстойна проверка на историята на имота за целия период, консултация и набавяне на пълния пакет документация, необходими за финализиране. На купувачите, разчитащи на банков кредит сме готови да осигурим НАПЪЛНО БЕЗПЛАТНО професионално кредитно обслужване от водещи НЕЗАВИСИМИ кредитни посредници. ОДОБРЕНИЕ ДО 24 часа.
Giriş yapmak
+ Ücretsiz reklam

![Satılık 2 yatak odası Sofia , Lyulin 8 , 110 metrekare | 93361207 - görüntü [2] — Imoti.info Satılık 2 yatak odası Sofia , Lyulin 8 , 110 metrekare | 93361207 - görüntü [2]](http://imotstatic1.focus.bg/imot/photosimotbg/1/858/big/1c176303678231858_b8.jpg)









