На продаж  2 спальні Пловдив , Остромила , 131 кв.м | 18333806
5 фотографії

На продаж 2 спальні в Пловдив, Остромила, 131 кв.м

168 200
328 970,61 лв.
ПДВ включено
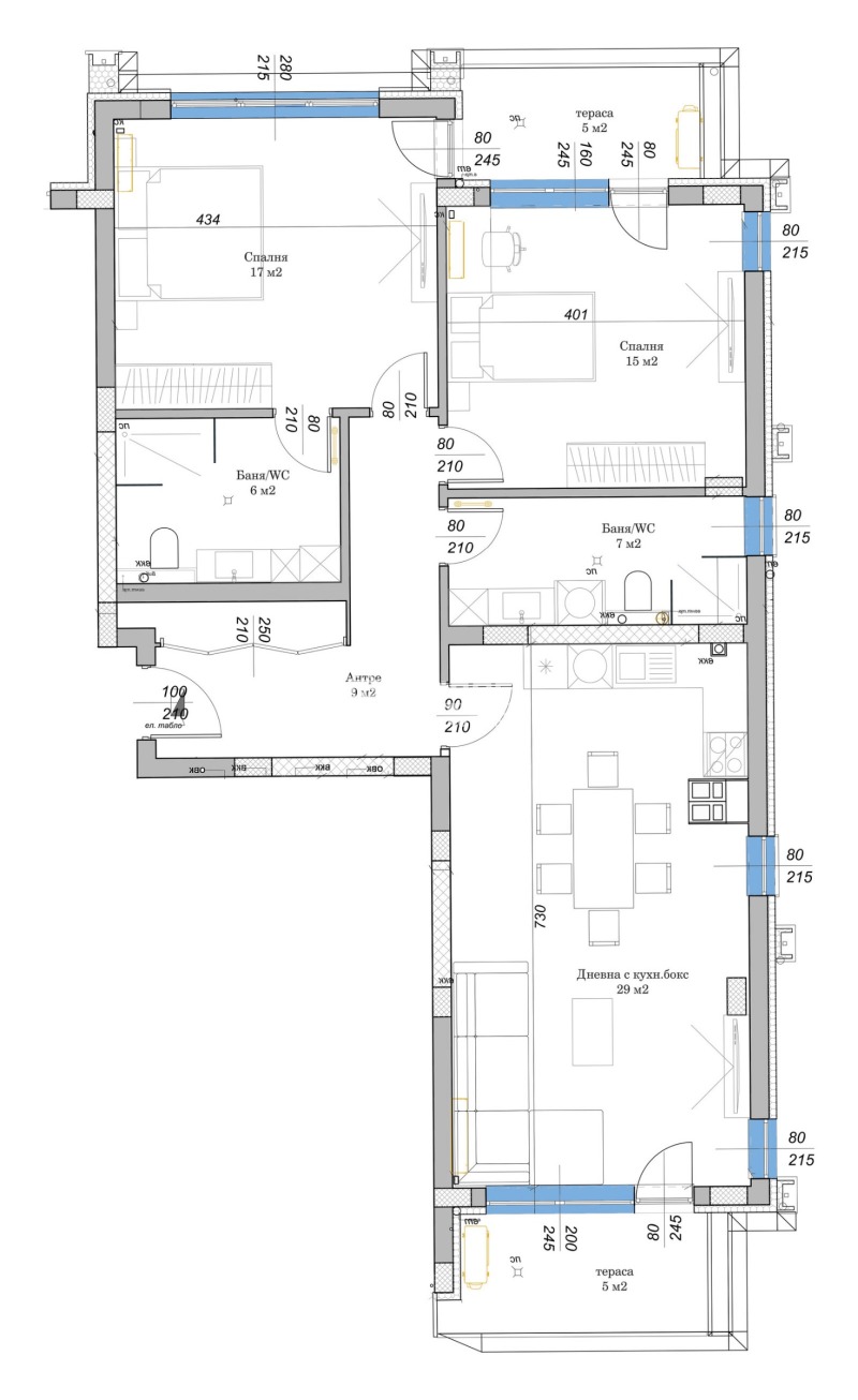
Площа: 131 кв.мПоверх 2-й Тип будівництва Цегла, 2026
Центральне опалення: -газ: -
Опис нерухомості:
Оферта 64722: Представяме Ви новоизградена малка и луксозна сграда от типа на Фамилна къща, проектирана с просторни и слънчеви жилища така, че да създаде максимален комфорт и уют. Намира на тихо и спокойно място в район с нискоетажно застрояване в близост до всички необходими комуникации с отличен и лесен достъп към централната част на града. Жилището се състои от ъглова югоизточна дневна с площ от 29 кв.м. с трапезария и кухненски бокс с излаз на тераса, две големи самостоятелни спални с излаз на обща тераса: детска 15кв.м., родителска 17кв.м. с голяма баня 7кв.м., втора комфортна баня с тоалетна 7кв.м. и широко входно антре с място за вграден гардероб. Обектът е изграден с висококачествени материали и съвременни технологии, по европейски стандарт, шесткамерна PVC дограма с троен стъклопакет, червена Австрийска Тухла, частично окачена фасада, масивна Блиндирана входна врата с 4-странно заключване, сензорно осветление, хидравлични асансьори с огледална кабина. Свободни паркоместа в двора!!! Възможност за разсрочено плащане в рамките на строителството или закупуване чрез Банков Кредит!!! ВИЖТЕ ОЩЕ ИЗГОДНИ ОФЕРТИ НА https://www.kondorimoti.com/ С ЕЖЕДНЕВНА АКТУАЛИЗАЦИЯ!
На продаж  2 спальні Пловдив , Остромила , 131 кв.м | 18333806 - зображення [2]
На продаж  2 спальні Пловдив , Остромила , 131 кв.м | 18333806 - зображення [3]
На продаж  2 спальні Пловдив , Остромила , 131 кв.м | 18333806 - зображення [4]
На продаж  2 спальні Пловдив , Остромила , 131 кв.м | 18333806 - зображення [5]Дивіться далі 1 фотографії
Ціна

Ціна нерухомості: 168 200 €

328 970,61 лв.

Ціна на кв.м: 1283,969 €

2 511,23 лв. на кв.м

Підпишіться на мене, щоб отримувати повідомлення про зміну цін
Місцезнаходження

Пловдив, Остромила

Статистика
  • 393погляди
  • 0зберігає
Оголошення оновлено 29 вересень 2025
Зв'язатися з продавцем
089XXX... (показати)
Агент
//photos.imoti.info//assets/user.svg
Кондор Имоти
0897777032

КОНДОР - НЕДВИЖИМИ ИМОТИ
Пловдив ул.Петко Д.Петков 23,ет.4 /до ТЦ Гранд/
На продаж 2 спальні в Пловдив, Остромила, 131 кв.м
168 200 €
131 кв.м2-й Цегла, 2026
call20897777032