На продаж  1 спальня Варна , ВИНС-Червен площад , 59 кв.м | 39420896
3 фотографії

На продаж 1 спальня в Варна, ВИНС-Червен площад, 59 кв.м

87 900
171 917,46 лв.
ПДВ не стягується
Площа: 59 кв.мПоверх 9-й Тип будівництва Цегла, 2027
Центральне опалення: -газ: -
Опис нерухомості:
🏢 Двустаен апартамент с функционално разпределение в кв. Владиславово ново строителство!
📍 гр. Варна, кв. Владислав Варненчик
📞 За контакт: Мудин Алиев 0877 966 695

Предлагаме за продажба двустаен апартамент в новострояща се жилищна сграда в един от най-предпочитаните квартали за живеене Владиславово, гр. Варна. Имотът се намира на 9-ти етаж от общо 10, с отлична ориентация и функционално вътрешно разпределение.

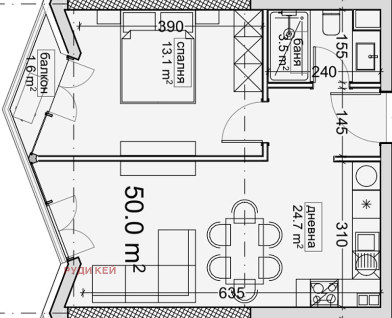
🔹 Застроена площ: 50.00 кв.м
🔹 Обща площ: 58.47 кв.м
🔹 Етаж: 9 от 10
🔹 Тип: Двустаен
🔹 Срок на завършване: 2027 година

🛋 Разпределение:

Входно антре

Просторна дневна с кухненски бокс

Спалня

Баня с тоалет

Балкон с достъп от дневната

🏗 Сградата е в процес на строителство, проектирана с модерна визия и функционални жилища. Ще бъде завършена с висококачествени материали, осигуряващи комфорт и енергийна ефективност.

📍 Локацията в кв. Владиславово предлага:

Удобен достъп до градски транспорт

В близост до училища, детски градини, магазини и паркове

Спокойна и добре уредена жилищна среда

✨ Подходящ както за живеене, така и за инвестиция с цел отдаване под наем!

📞 За повече информация и огледи:
Мудин Алиев 0877 966 695
На продаж  1 спальня Варна , ВИНС-Червен площад , 59 кв.м | 39420896 - зображення [2]
На продаж  1 спальня Варна , ВИНС-Червен площад , 59 кв.м | 39420896 - зображення [3]
Ціна

Ціна нерухомості: 87 900 €

171 917,46 лв.

Ціна на кв.м: 1489,831 €

2 913,86 лв. на кв.м

Підпишіться на мене, щоб отримувати повідомлення про зміну цін
Місцезнаходження

Варна, ВИНС-Червен площад

Статистика
  • 44погляди
  • 0зберігає
Оголошення опубліковано на 16 жовтень 2025
Зв'язатися з продавцем
087XXX... (показати)
Агент
//photos.imoti.info//assets/user.svg
Мудин Алиев
0877 966 695, 052 580 051

РУДИ КЕЙ
Варна бул. Цар Освободител 160
На продаж 1 спальня в Варна, ВИНС-Червен площад, 59 кв.м
87 900 €
59 кв.м9-й Цегла, 2027
call20877966695