For Sale  2 bedroom Plovdiv , Kyuchuk Parizh , 95 sq.m | 40366859
8 pictures

For Sale 2 bedroom в Plovdiv, Kyuchuk Parizh, 95 sq.m

116 120
227 110,98 лв.
VAT is included
Area: 95 sq.mFloor 2nd Construction type Brick, 2027
Central Heating: -Gas: -
Property Description:
🔈БЕЗ КОМИСИОН ДИРЕКТНО ОТ ИНВЕСТИТОР!🔈 ОФЕРТА : 4702
◼ Новостроящ се жилищен комплекс в сърцето на квартал Кючук Париж.
◼ Наличие на едностайни, двустайни и тристайни апартаменти .
✔️ Разпределение:
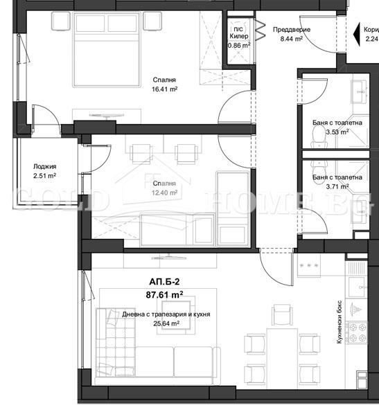
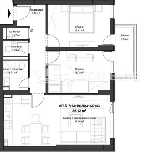
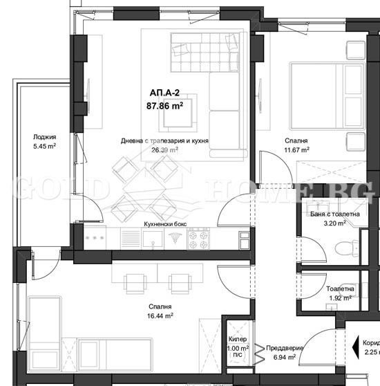
Тристайните апартаменти се състоят от входно антре, дневна с трапезария и кухненски бокс, две спални ,две мокри помещения, лоджия и изба или килер.

Налични модули:
📍Етап 2 към момента е на кота -0,00
-94,41кв.м. - 116 120 евро
-101,14кв.м. - 124 402 евро
-102,89кв.м. - 126 554 евро
-103,18кв.м. - 126 911 евро
-103,35кв.м. - 127 120 евро
📍Етап 1 се състои от три сгради с АКТ 14
-102,48кв.м. - 128 100 евро
-103,22кв.м. - 129 025 евро

✔️Степен на завършеност :
Стени турбозолна мазилка , Под запазка , Ел.инсталация с ключове и контакти , ВиК до тапа , ПВЦ докрама и входна блиндирана врата .

🚗Паркиране :
Проблемът с паркирането е решен на 100% за желаещите да си закупят ще се предлагат подземни и надземни паркоместа и надземни гаражи.

📅Срокове на изпълнение :
◼ Изгражда се на два етапа : Етап едно включва три сгради с АКТ 14 . Въвеждане в експлоатация се очаква края на 2027 година .
◼ Етап две се състои от една сграда с два входа и в момента е на етап Кота 0.

✔️За сградата :
- Проектът предвижда жилища, търговски площи и подземен паркинг.
- Отличава се с модерен дизайн и функционалност .
- На територията равномерно са разпределени голям брой зелени площи.

🏗️ За строителя :
Инвеститорът е с богат опит в строителството и изпълнението на жилищни сгради на територията на град Пловдив и град София.

📍Локация:
- Районът, в който се строи комплексът е в среда с множество обществени обекти - детски градини, училища, болници, хипермаркети, в близост до основни пътни артерии с удобен достъп до градски транспорт.
- В непосредствена близост се намира Първо РПУ , хипермаркети Kaufland и LIDL , аптека , DM и други.

➡️'ГОЛД ИМОТИ' Ви предлага да се възползвате от професионално кредитно посредничество чрез Credit Center при ипотека, потребителски кредит и рефинансиране!
-УСЛУГАТА Е ИЗЦЯЛО БЕЗПЛАТНА!
-ИЗГОТВЯНЕ НА НЯКОЛКО ОФЕРТИ ОТ ВОДЕЩИ БАНКИ!
-НАЙ-ИЗГОДНИ УСЛОВИЯ СПРЯМО ВАШИЯТ ПРОФИЛ!
-НЕ Е НЕОБХОДИМО ДА СЕ РАЗКАРВАТЕ ВЪВ ВСЕКИ КЛОН НА РАЗЛИЧНИ БАНКИ!
➡️Още атрактивни оферти може да намерите на нашият сайт goldhome.bg
➡️За повече информация и при интерес за оглед, моля свържете се с нас на 0894 274 966, 0899 143 262, 0896 706 299 или 0899 125 189.
Features:
  • Lift
  • With a garage
  • With a parking lot
  • Internet connection
  • Access control
For Sale  2 bedroom Plovdiv , Kyuchuk Parizh , 95 sq.m | 40366859 - image [2]
For Sale  2 bedroom Plovdiv , Kyuchuk Parizh , 95 sq.m | 40366859 - image [3]
For Sale  2 bedroom Plovdiv , Kyuchuk Parizh , 95 sq.m | 40366859 - image [4]
For Sale  2 bedroom Plovdiv , Kyuchuk Parizh , 95 sq.m | 40366859 - image [5]See next 4 pictures
Price

Property price: 116 120 €

227 110,98 лв.

Price on sq.m: 1222,316 €

2 390,64 лв. on sq.m

Subscribe me for price change notifications
Location

Plovdiv, Kyuchuk Parizh

Statistics
  • 2views
  • 0saves
The ad was published on 3 October 2025
Contact seller
0894 XXX... (show)
Agent
//photos.imoti.info//assets/user.svg
Tanya Satanska
0894274966

GOLD IMOTI
Plovdiv ulitsa '' Brezovska '' 31a
For Sale 2 bedroom в Plovdiv, Kyuchuk Parizh, 95 sq.m
116 120 €
95 sq.m2nd Brick, 2027