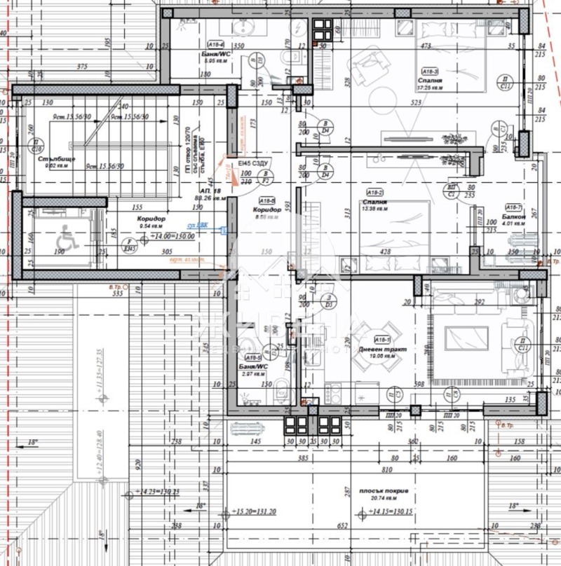
Агенция Живена предлага за продажба тристаен апартамент, завършен До ключ, с площ 111.5 кв.м, в един от най-предпочитаните райони за живеене в кв. Бриз. Апартаментът е със следното разпределение: коридор, дневна с кухня, 2 спални, баня с тоалетна и две панорамни тераси. Към жилището има маза. Сградата е с АКТ 16 от Юли 2025 г. Имотът е разположен на 6-ти /последен/ етаж и е самостоятелен на етажа. Вложени са висококачествените материали, познати на съвременните тенденции в строителството, с фасада от естествен камък, стилни в светли тонове общи части, с морска панорама почти от всички жилища. В сградата се продават и други двустайни и тристайни жилища на цени от 170 000 до 300 000 евро. Има възможност и за покупка на паркоместа - дворни: на цена от 20 000 евро и подземни: на цена от 30 000 евро. Всички апартаменти ще бъдат завършени до ключ, с плочки в банята (без оборудването), настилки в коридора, дневната и спалнята, интериорни врати, шпакловани и боядисани стени и тавани. Локацията на имота е едно от най-големите му предимства, тъй като съчетава в себе зелени площи в близост, морска и градска панорама, близост до автобусни спирки, магазини и главни пътни артерии на града. Агенция Живена извършва необходимите проверки на имота, който сте избрали, организира всички етапи на сделката до нейното финализиране. Оказваме съдействие за отпускане на банков кредит. Оферта 7150
Вход
+ Безплатна обява

![Продава 3-стаен град Варна , Бриз , 111 кв.м | 16389136 - изображение [2] — Imoti.info Продава 3-стаен град Варна , Бриз , 111 кв.м | 16389136 - изображение [2]](http://imotstatic1.focus.bg/imot/photosimotbg/1/449/big/1c175403411093449_sj.jpg)
![Продава 3-стаен град Варна , Бриз , 111 кв.м | 16389136 - изображение [3] — Imoti.info Продава 3-стаен град Варна , Бриз , 111 кв.м | 16389136 - изображение [3]](http://imotstatic1.focus.bg/imot/photosimotbg/1/449/big/1c175403411093449_41.jpg)
![Продава 3-стаен град Варна , Бриз , 111 кв.м | 16389136 - изображение [4] — Imoti.info Продава 3-стаен град Варна , Бриз , 111 кв.м | 16389136 - изображение [4]](http://imotstatic1.focus.bg/imot/photosimotbg/1/449/big/1c175403411093449_Me.jpg)
![Продава 3-стаен град Варна , Бриз , 111 кв.м | 16389136 - изображение [5] — Imoti.info Продава 3-стаен град Варна , Бриз , 111 кв.м | 16389136 - изображение [5]](http://imotstatic1.focus.bg/imot/photosimotbg/1/449/big/1c175403411093449_GZ.jpg)
![Продава 3-стаен град Варна , Бриз , 111 кв.м | 16389136 - изображение [6] — Imoti.info Продава 3-стаен град Варна , Бриз , 111 кв.м | 16389136 - изображение [6]](http://imotstatic1.focus.bg/imot/photosimotbg/1/449/big/1c175403411093449_qA.jpg)
![Продава 3-стаен град Варна , Бриз , 111 кв.м | 16389136 - изображение [7] — Imoti.info Продава 3-стаен град Варна , Бриз , 111 кв.м | 16389136 - изображение [7]](http://imotstatic1.focus.bg/imot/photosimotbg/1/449/big/1c175403411093449_Ra.jpg)
![Продава 3-стаен град Варна , Бриз , 111 кв.м | 16389136 - изображение [8] — Imoti.info Продава 3-стаен град Варна , Бриз , 111 кв.м | 16389136 - изображение [8]](http://imotstatic1.focus.bg/imot/photosimotbg/1/449/big/1c175403411093449_q8.jpg)
![Продава 3-стаен град Варна , Бриз , 111 кв.м | 16389136 - изображение [9] — Imoti.info Продава 3-стаен град Варна , Бриз , 111 кв.м | 16389136 - изображение [9]](http://imotstatic1.focus.bg/imot/photosimotbg/1/449/big/1c175403411093449_CF.jpg)
![Продава 3-стаен град Варна , Бриз , 111 кв.м | 16389136 - изображение [10] — Imoti.info Продава 3-стаен град Варна , Бриз , 111 кв.м | 16389136 - изображение [10]](http://imotstatic1.focus.bg/imot/photosimotbg/1/449/big/1c175403411093449_yY.jpg)
![Продава 3-стаен град Варна , Бриз , 111 кв.м | 16389136 - изображение [11] — Imoti.info Продава 3-стаен град Варна , Бриз , 111 кв.м | 16389136 - изображение [11]](http://imotstatic1.focus.bg/imot/photosimotbg/1/449/big/1c175403411093449_n4.jpg)
![Продава 3-стаен град Варна , Бриз , 111 кв.м | 16389136 - изображение [12] — Imoti.info Продава 3-стаен град Варна , Бриз , 111 кв.м | 16389136 - изображение [12]](http://imotstatic1.focus.bg/imot/photosimotbg/1/449/big/1c175403411093449_Zm.jpg)
![Продава 3-стаен град Варна , Бриз , 111 кв.м | 16389136 - изображение [13] — Imoti.info Продава 3-стаен град Варна , Бриз , 111 кв.м | 16389136 - изображение [13]](http://imotstatic1.focus.bg/imot/photosimotbg/1/449/big/1c175403411093449_sg.jpg)
![Продава 3-стаен град Варна , Бриз , 111 кв.м | 16389136 - изображение [14] — Imoti.info Продава 3-стаен град Варна , Бриз , 111 кв.м | 16389136 - изображение [14]](http://imotstatic1.focus.bg/imot/photosimotbg/1/449/big/1c175403411093449_gG.jpg)
![Продава 3-стаен град Варна , Бриз , 111 кв.м | 16389136 - изображение [15] — Imoti.info Продава 3-стаен град Варна , Бриз , 111 кв.м | 16389136 - изображение [15]](http://imotstatic1.focus.bg/imot/photosimotbg/1/449/big/1c175403411093449_dI.jpg)
![Продава 3-стаен град Варна , Бриз , 111 кв.м | 16389136 - изображение [16] — Imoti.info Продава 3-стаен град Варна , Бриз , 111 кв.м | 16389136 - изображение [16]](http://imotstatic1.focus.bg/imot/photosimotbg/1/449/big/1c175403411093449_eN.jpg)
![Продава 3-стаен град Варна , Бриз , 111 кв.м | 16389136 - изображение [17] — Imoti.info Продава 3-стаен град Варна , Бриз , 111 кв.м | 16389136 - изображение [17]](http://imotstatic1.focus.bg/imot/photosimotbg/1/449/big/1c175403411093449_3C.jpg)










