ЕКСКЛУЗИВНО ОТ ERA PRIME
Двустаен апартамент с паркомясто в нова бутикова сграда ул. Ванко Ванков 9 , кв. Левски, Варна
Представяме Ви уникална възможност за покупка на просторен двустаен апартамент с паркомясто, разположен в модерна сграда ново строителство с контрол на достъпа, в един от най-търсените райони на Варна кв. Левски.
ХАРАКТЕРИСТИКИ НА ИМОТА:
Етаж: 3
Изложение: Югоизток
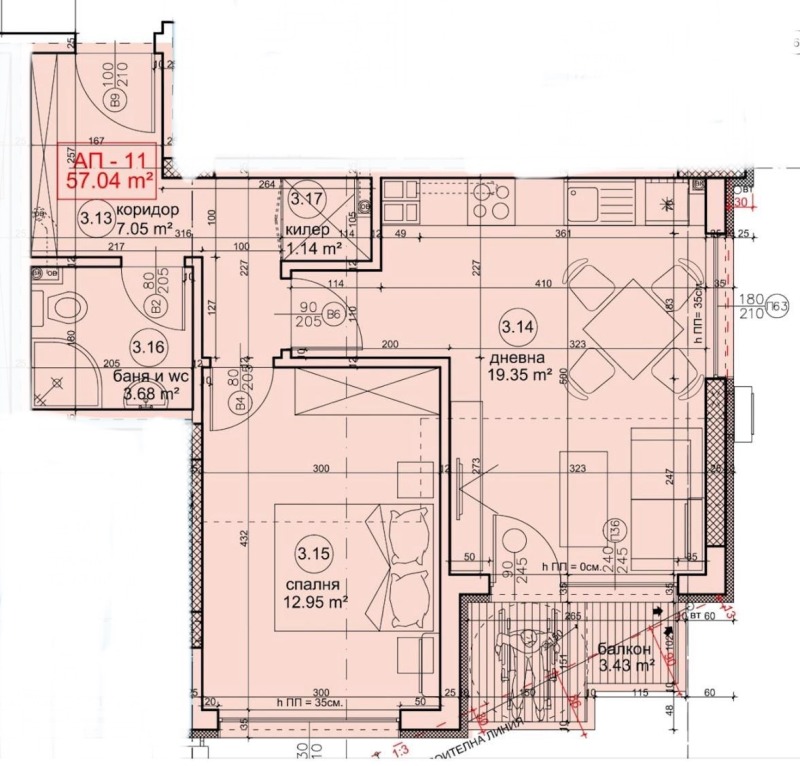
Площ: 65 кв.м ( с общи части )
АП 11
Разпределение:
Светла дневна с излаз на тераса
Спалня
Коридор
Баня с тоалет
Килер/перално
Просторна тераса
Може да се закупи и паркомясто към апартамента
СГРАДАТА:
Бутикова, с изчистена визия, само осем етажа, изградена с внимание към детайла и използване на висококачествени материали и иновативни технологии. Комбинация от класическа архитектура и модерни решения, гарантиращи комфорт и стил.
ЛОКАЦИЯ:
На метри от Технически университет, Лидл, детска градина, училище, болница и всички необходими удобства на града. Район с отлична инфраструктура и бърз достъп до центъра на Варна.
Състояние: По БДС възможност да завършите своя нов дом по индивидуален стил и вкус.
Цена на апартамента : 129 900
Цена на паркомясто : 25 000
Безкомпромисно качество. Отлична локация. Гарантирана стойност. ДОКАЗАН СТРОИТЕЛ !
Вход
+ Безплатна обява

![Продава 2-стаен град Варна , Левски 1 , 65 кв.м | 21093072 - изображение [2] — Imoti.info Продава 2-стаен град Варна , Левски 1 , 65 кв.м | 21093072 - изображение [2]](http://imotstatic1.focus.bg/imot/photosimotbg/1/197/big/1b176216442015197_NB.jpg)
![Продава 2-стаен град Варна , Левски 1 , 65 кв.м | 21093072 - изображение [3] — Imoti.info Продава 2-стаен град Варна , Левски 1 , 65 кв.м | 21093072 - изображение [3]](http://imotstatic1.focus.bg/imot/photosimotbg/1/197/big/1b176216442015197_vO.jpg)
![Продава 2-стаен град Варна , Левски 1 , 65 кв.м | 21093072 - изображение [4] — Imoti.info Продава 2-стаен град Варна , Левски 1 , 65 кв.м | 21093072 - изображение [4]](http://imotstatic1.focus.bg/imot/photosimotbg/1/197/big/1b176216442015197_qg.jpg)









