456486 Предлагаме апартаменти с отлични разпределения, в нова сграда в жк. Кайсиева Градина - Възраждане 1, гр. Варна.
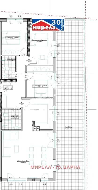
Апартаментът, който презентирам с тази оферта, се състои от дневна с кухненски бокс 39.25 кв.м, три спални по 11.58 кв.м, 10.30 кв.м и 9.59 кв. м., покривна тераса 64.40 кв.м. към дневната и две от спалните, баня с тоалетна 4.60 кв.м, втора баня с тоалетна 3.79 кв. м. и Г-образен коридор с гардеробна ниша.
Жилището е на единадесети етаж от общо единадесет в сграда с два асансьора и контролиран достъп.
КЪМ АПАРТАМЕНТА ИМА ИЗБЕНО ПОМЕЩЕНИЕ С ГОЛЕМИНА 5.22 КВ. М.
ИМА ВЪЗМОЖНОСТ ЗА ЗАКУПУВАНЕ НА ПАРКОМЕСТА.
РАЗСРОЧЕНА СХЕМА НА ПЛАЩАНЕ ДО АКТ 16.
СРОК ЗА ВЪВЕЖДАНЕ НА СГРАДАТА В ЕКСПЛОАТАЦИЯ: 03.2028 Г.
В СГРАДАТА СЕ ПРЕДЛАГАТ И ТРИСТАЙНИ АПАРТАМЕНТИ.
БОНУС ВКЛЮЧЕНИ ИНТЕРИОРНИ ВРАТИ В ЦЕНАТА.
ДОКАЗАН СТРОИТЕЛ С МНОЖЕСТВО ПОСТРОЕНИ СГРАДИ НА ТЕРИТОРИЯТА НА ГР. ВАРНА.
Апартаментът ще бъде завършен до степен БДС, но строителят предлага възможност за довършване до ключ на изключително изгодни цени.
Сградата разполага с един вход, 11 етажа и общо 57 апартамента открити ,от които 27 двустайни,29 тристайни и 1 четиристаен апартамент, осигуряващи комфорт и удобство на своите обитатели. В допълнение, сградата предлага два гаража, 55 открити и закрити паркоместа, както и търговско помещение.
За по-голямо удобство на бъдещите жители, ще бъдат изградени паркоместа за електромобили. Закритите паркоместа са разположени на две нива, с топла връзка към апартаментите, осигуряваща удобен достъп при всякакви метеорологични условия.
ЛОКАЦИЯ И ОРИЕНТАЦИЯ:
Сградата е с оптимално изложение северозапад, юг и югоизток, което гарантира естествена светлина през целия ден и комфортна жилищна среда.
ФАСАДА И ОБЩИ ЧАСТИ:
Фасадата ще бъде изпълнена с висококачествени материали, включително:
Парапети от закалено стъкло, придаващи модерен и изискан облик.
Топлоизолация с твърда каменна вата (10 см) в партерната част за енергийна ефективност.
Вентилируема обшивка 'Еталбонд , осигуряваща дълготрайност и стил.
Общите части ще бъдат завършени с внимание към детайла:
Стълбищна клетка декоративна мазилка, иноксов парапет и облицовка с гранитни плочи.
Входни врати блиндирани, с двустранно ...
Вход
+ Безплатна обява

![Продава 4-стаен град Варна , Кайсиева градина , 199 кв.м | 21097555 - изображение [2] — Imoti.info Продава 4-стаен град Варна , Кайсиева градина , 199 кв.м | 21097555 - изображение [2]](http://imotstatic1.focus.bg/imot/photosimotbg/1/554/big/1d175926020904554_W0.jpg)
![Продава 4-стаен град Варна , Кайсиева градина , 199 кв.м | 21097555 - изображение [3] — Imoti.info Продава 4-стаен град Варна , Кайсиева градина , 199 кв.м | 21097555 - изображение [3]](http://imotstatic1.focus.bg/imot/photosimotbg/1/554/big/1d175926020904554_CD.jpg)
![Продава 4-стаен град Варна , Кайсиева градина , 199 кв.м | 21097555 - изображение [4] — Imoti.info Продава 4-стаен град Варна , Кайсиева градина , 199 кв.м | 21097555 - изображение [4]](http://imotstatic1.focus.bg/imot/photosimotbg/1/554/big/1d175926020904554_g3.jpg)
![Продава 4-стаен град Варна , Кайсиева градина , 199 кв.м | 21097555 - изображение [5] — Imoti.info Продава 4-стаен град Варна , Кайсиева градина , 199 кв.м | 21097555 - изображение [5]](http://imotstatic1.focus.bg/imot/photosimotbg/1/554/big/1d175926020904554_E4.jpg)









