Продава  Парцел град София , СПЗ Слатина , 3209 кв.м | 22487181
7 снимки

Продава Парцел в град София, СПЗ Слатина, 3209 кв.м

802 250
1 569 064,62 лв.
Не се начислява ДДС
Квадратура: 3209 кв.мЕтаж: Вид строителство:
Регулация: -Ток: ДАВода: ДА
Описание на имота:
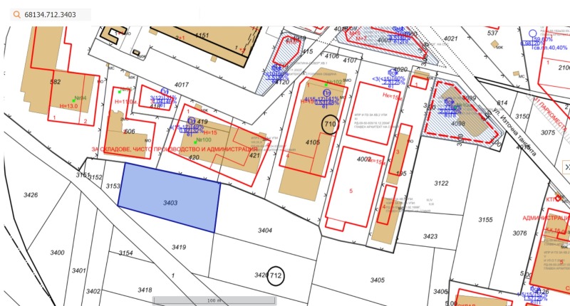
- Поземлен имот за продажба намиращ се в местността ' Средното ' , в близост до Летище София , Митница Аерогара София , DHL Експрес България , Луфтханза , на около ~ 200 м. от бул. ' Източна тангента ' и на около ~ 300 м. от бул. ' Брюксел '.

- Имотът се състои от / 3209 кв.м. / площ и попада в устройствена зона ПМС / Промишлена зона за производства и услуги / позволяваща застрояване с производствени , складови , административни , търговски и обслужващи сгради и съоражения , работилници и други. Възможност за закупуване и обединяване с множество съседни поземлени имоти със сходни характеристики и продажни цени.

- Повече информация , уговорки относно огледи , както професионално съдействие за кредитиране от лицензирания ни финансов консултант , на тел . : 0877 613 094
Особености:
  • Виза
  • Обезщетение
Продава  Парцел град София , СПЗ Слатина , 3209 кв.м | 22487181 - изображение [2]
Продава  Парцел град София , СПЗ Слатина , 3209 кв.м | 22487181 - изображение [3]
Продава  Парцел град София , СПЗ Слатина , 3209 кв.м | 22487181 - изображение [4]
Продава  Парцел град София , СПЗ Слатина , 3209 кв.м | 22487181 - изображение [5]Виж следващите 3 снимки
Цена

Цена на имота: 802 250 €

1 569 064,62 лв.

Цена на кв.м: 250 €

488,96 лв. на кв.м

Абонирай ме за известия за промяна в цената
Локация

град София, СПЗ Слатина

Статистика
  • 41разглеждания
  • 0добавяния в Бележника
Обявата е публикувана на 12 октомври 2025
Попитай продавача
0877 XXX... (покажи)

ЕКСПЕРТ ЕСТЕЙТ ГРУП
град София Оборище, ул. Алеко Константинов 32
Продава Парцел в град София, СПЗ Слатина, 3209 кв.м
802 250 €
3209 кв.м
call20877 613 094