Продава  2-стаен град София , Малинова долина , 74 кв.м | 31301356
5 fotos

Продава 2-стаен в град София, Малинова долина, 74 кв.м

VIP
200 300
391 752,75 лв.
Цената е с включено ДДС
Área: 74 кв.мPiso 4-ти Tipo de construcción Тухла, 2025 г.
Calefacción central: -Gas: ДА
Descripción de propiedad:
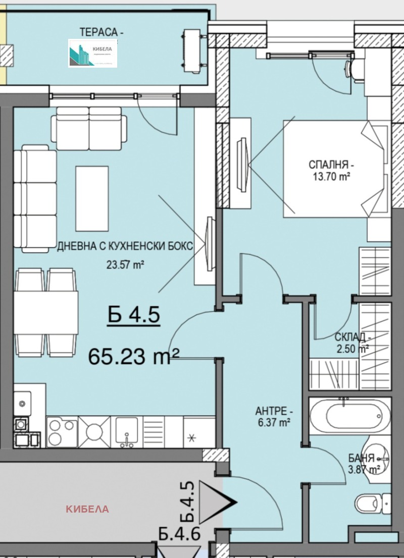
БЕЗ КОМИСИОН ОТ КУПУВАЧА! Предлагаме на вашето внимание просторен и светъл двустаен апартамент с Акт 16 в кв. Малинова долина. Имота е с площ 65.23 кв.м.застроена площ, разположен на 4-ти етаж със западно изложение изложение, отопление на ГАЗ.
Разпределение: входно антре- 6.37 кв.м., дневна с кухненски бокс 23.57 кв.м., просторна спалня - 13.70, баня с тоалетна - 4 кв, склад 2.50 кв.м. и балкон 5.66 кв.м.
Сградата е с контролиран достъп, видеонаблюдение, с луксозни общи части. Отлична локация, в непосредствена близост до магазин Фантастико, бул. Симеоновско шосе и бъдеща метростанция. Има възможмоност за покупка на подземно паркомясто.
Предлагаме и други двустайни и тристайни апартаменти в сградата. Агенцията разполага с ключ.
Características:
  • Асансьор
  • Интернет връзка
  • Видео наблюдение
  • Контрол на достъпа
  • Саниран
  • Възможност за дан. кредит
Продава  2-стаен град София , Малинова долина , 74 кв.м | 31301356 - изображение [2]
Продава  2-стаен град София , Малинова долина , 74 кв.м | 31301356 - изображение [3]
Продава  2-стаен град София , Малинова долина , 74 кв.м | 31301356 - изображение [4]
Продава  2-стаен град София , Малинова долина , 74 кв.м | 31301356 - изображение [5]Ver siguiente 1 fotos
Precio

Precio de la propiedad: 200 300 €

391 752,75 лв.

Precio на кв.м: 2706,757 €

5 293,96 лв. на кв.м

Suscríbeme para recibir notificaciones de cambios de precios
Ubicación

град София, Малинова долина

Estadísticas
  • 36puntos de vista
  • 0ahorra
El anuncio ha sido actualizado el 13 октомври 2025
Contacte al vendedor
088XXX... (espectáculo)

КИБЕЛА
град София ул. Академик Борис Стефанов 35 офис24
Продава 2-стаен в град София, Малинова долина, 74 кв.м
200 300 €
74 кв.м4-ти Тухла, 2025 г.
call20888602009