Продава  Парцел град София , гр. Банкя , 1948 кв.м | 34202180
3 снимки

Продава Парцел в град София, гр. Банкя, 1948 кв.м

TOP
250 000
488 957,5 лв.
Не се начислява ДДС
Квадратура: 1948 кв.мЕтаж: Вид строителство:
Регулация: ДАТок: ДАВода: ДА
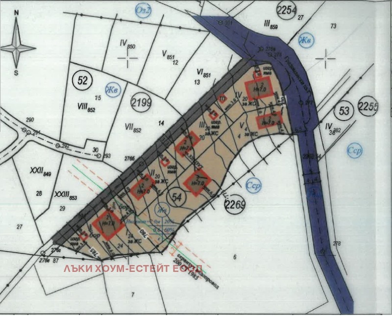
Описание на имота:
Лъки Хоум-Естейт предлага УПИ с влязъл в сила ПУП за строителство на 3 Къщи.

Локация: Гр.Банкя, ул.Градомански Път, на 250 метра от Язовир Михайлово.

Предимства и особенности:
-Одобрен ПУП за три къщи.
-Параметри: Кота корниз 7м, Плътност 20%, Кинт 0.6, Озеленяване 60%.
-Пред имота има Ток, вода и Канал.
-Около парцела в момента се строят 5 къщи.
-Страхотна панорама във всички посоки.

За допълнителна информация и огледи: Жулиен Димитров 0883 387 211
Особености:
  • За жил.строителство
Продава  Парцел град София , гр. Банкя , 1948 кв.м | 34202180 - изображение [2]
Продава  Парцел град София , гр. Банкя , 1948 кв.м | 34202180 - изображение [3]
Цена

Цена на имота: 250 000 €

488 957,5 лв.

Цена на кв.м: 128,337 €

251,01 лв. на кв.м

Абонирай ме за известия за промяна в цената
Локация

град София, гр. Банкя

Статистика
  • 29разглеждания
  • 0добавяния в Бележника
Обявата е публикувана на 20 октомври 2025
Попитай продавача
088XXX... (покажи)

ЛЪКИ ХОУМ-ЕСТЕЙТ ЕООД
град София ул. Твърдишки проход 15 ет. 1
Продава Парцел в град София, гр. Банкя, 1948 кв.м
250 000 €
1948 кв.м
call20883387211