Продава  3-стаен град София , Младост 4 , 114 кв.м | 34345553
5 снимки

Продава 3-стаен в град София, Младост 4, 114 кв.м

256 275
501 230,33 лв.
Цената е с включено ДДС
Квадратура: 114 кв.мЕтаж: 5-ти Вид строителство: Тухла, 2026 г.
ТЕЦ: -Газ: -
Описание на имота:
БЕЗ КОМИСИОН!

Cozy Home Agency представя на Вашето внимание, новострояща се сграда в гр. София, ж.к.Младост 4!

Район с изградена инфраструктура, богато озеленяване в междублоковото пространство и в близост до метростанция Бизнес парк.

Сградата се отличава с модерна архитектура, а общите части ще бъдат луксозно изпълнени. Паркирането е решено с подземни и партерни паркоместа и гаражи.

В близост до магазини, офиси, Бизнес парк София

В сградата се предлагат и други свободни 3-стайни жилища.

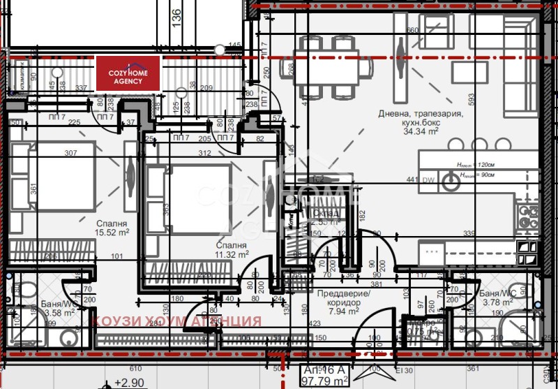
Приложена е схема на тристаен апартамент:

Етаж: 6 от 9
Площ: 113,90 кв.м

Разпределение:

. Входно антре
. Голяма дневна с кухненски бокс
. Две спални
. Две бани с тоалетни
. Склад
. Два балкона

Агенцията предлага безплатно съдействие за консултация с кредитен посредник за ипотечно финансиране.

Всички наши огледи се провеждат с протокол за оглед.
Оферта 246

За информация и оглед: 0882424017 Бирсен Шукриева
Продава  3-стаен град София , Младост 4 , 114 кв.м | 34345553 - изображение [2]
Продава  3-стаен град София , Младост 4 , 114 кв.м | 34345553 - изображение [3]
Продава  3-стаен град София , Младост 4 , 114 кв.м | 34345553 - изображение [4]
Продава  3-стаен град София , Младост 4 , 114 кв.м | 34345553 - изображение [5]Виж следващите 1 снимки
Цена

Цена на имота: 256 275 €

501 230,33 лв.

Цена на кв.м: 2248,026 €

4 396,76 лв. на кв.м

Абонирай ме за известия за промяна в цената
Локация

град София, Младост 4

Статистика
  • 0разглеждания
  • 0добавяния в Бележника
Обявата е публикувана на 2 октомври 2025
Попитай продавача
088XXX... (покажи)

КОУЗИ ХОУМ АГЕНЦИЯ
град София София, ул.Анна Ахматова 9
Продава 3-стаен в град София, Младост 4, 114 кв.м
256 275 €
114 кв.м5-ти Тухла, 2026 г.
call20882424017