Продава  3-стаен град София , Кръстова вада , 100 кв.м | 41540446
17 fotos

Продава 3-стаен в град София, Кръстова вада, 100 кв.м

TOP
349 900
684 344,92 лв.
Цената е с включено ДДС
Área: 100 кв.мAndar 3-ти Tipo de construção Тухла, 2026 г.
Aquecimento central: -Gás: ДА
Descrição da Propriedade:
ПРЕДСТАВЯМЕ ВИ ФУНКЦИОНАЛЕН ТРИСТАЕН АПАРТАМЕНТ НА СРЕДЕН ЕТАЖ С ЮЖНО ИЗЛОЖЕНИЕ И ГЛЕДКА КЪМ ВИТОША - В СГРАДА ОТ НАЙ-ВИСОК КЛАС - ЕТАП АКТ 15

Сградата се намира в непосредствена близост (300 м.) до предстояща Метростанция и на пешеходно разстояние от Мол Парадайс и Метростанция 'Витоша'
Жилището е вътрешно, с функционално разпределение и е ситуирано на трети реален - втори жилищен етаж с южно излоение на дневната.
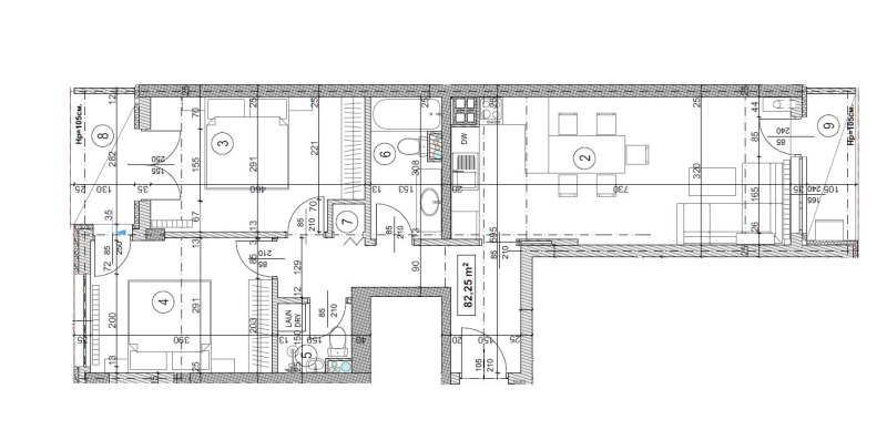
Вътрешно разпределение:
Входно антре, дневна с кухненски бокс, две спални, две бани с тоалетни и два балкона. За Ваше улеснение прилагане чертеж на апартамента.

Качеството на строителство е с внимание към всеки детайл:
- Луксозни общи части с гранит и вградена шумоизолация между стените на апартаментите.
Предлагаме възможност за индивидуален дизайнерски проект по действителни размери на жилището напълно безплатно и довършителни услуги до ключ. Възможност за покупка на подземен гараж.

Характеристики на сградата:
- Тухли - 'Wienerberger' с 2 см шумоизолация от каменна вата между стените;
- Външна изолация - 10 см EPS на BAUMIT;
- Отопление - природен газ с котле с изградено подово отопление с подложка от черно релефно фолио с топло и шумоизолационна плоча 3 см;
- Климатизация - положена тръбна разводка за климатична инсталация;
- Бани с тоалетни - монтирани конструкции за вграждане ТЕСЕ;
- Метални входни врати на сградата с контролиран достъп ,пощенски кутии и домофони;
- Вътрешни входни врати на апартаментите - фурнировани метални SOLID;
- Дограма - PVC 'Kommerling' 70 AD, петкамерна, външен цвят антрацит, вътрешен цвят бял, с троен стъклопакет и обков ROTO;
- ЕЛ, инсталация - монтирани ключове и контакти с монтирани електромери;
- Апартаменти стени - Гипсова мазилка TERAZID;
- Апартаменти под - циментова замазка BAUMIT SOLIDO;
- Aпартаменти под тераси - хидроизолация MAPEI, гранитогрес I качество
Парапет тераси - стъклен 16мм;
Стълбища и стълбищни площадки - Египетски гранит, Стени - гипсова мазилка и латекс, - Парапет - алуминиев;
- Фасада - топлоизолационна система BAUMIT PRO, EPS 10 см, силиконова мазилка и окачена фасада с Врачански камък;
- Гаражи и гаражни врати- варова мазилка, шлайфан бетон, врати HORMANN;
- Асансьори - ORONA;

ЕВОЛЮТ - Недвижими имоти предоставя безплатно съдействие и консултация за ипотечни кредити от всички водещи банки в страната.

Обадете се сега и цитирайте този Код: 63 341
Características:
  • Асансьор
  • Контрол на достъпа
  • Саниран
Продава  3-стаен град София , Кръстова вада , 100 кв.м | 41540446 - изображение [2]
Продава  3-стаен град София , Кръстова вада , 100 кв.м | 41540446 - изображение [3]
Продава  3-стаен град София , Кръстова вада , 100 кв.м | 41540446 - изображение [4]
Продава  3-стаен град София , Кръстова вада , 100 кв.м | 41540446 - изображение [5]Veja a seguir 13 fotos
Preço

Preço de propriedade: 349 900 €

684 344,92 лв.

Preço на кв.м: 3499 €

6 843,45 лв. на кв.м

Inscreva-me para receber notificações de alteração de preço
Localização

град София, Кръстова вада

Estatisticas
  • 12Visualizações
  • 0economizar
O anúncio foi publicado em 8 октомври 2025
Entre em contato com o vendedor
087XXX... (mostrar)
Agente
//photos.imoti.info/assets/images/brokerspicts/15231891250546767.webp
Даниел Вълчинков
0877 52 62 15

ЕВОЛЮТ ОФИС ВЮ
град София гр. София, бул. Г.М. Димитров 38
Продава 3-стаен в град София, Кръстова вада, 100 кв.м
349 900 €
100 кв.м3-ти Тухла, 2026 г.
call20877526215