Агенция SUPRIMMO: www.suprimmo.bg
Представяме за продажба двустаен апартамент в новострояща се жилищна сграда с елегантен дизайн, на 5 минути от плажа в Равда. Близо до спирки на градския транспорт, супермаркет Lidl, магазини, спортен терен и други удобства.
В процес на строителство.
Очакван Акт 16 - май 2027 г.
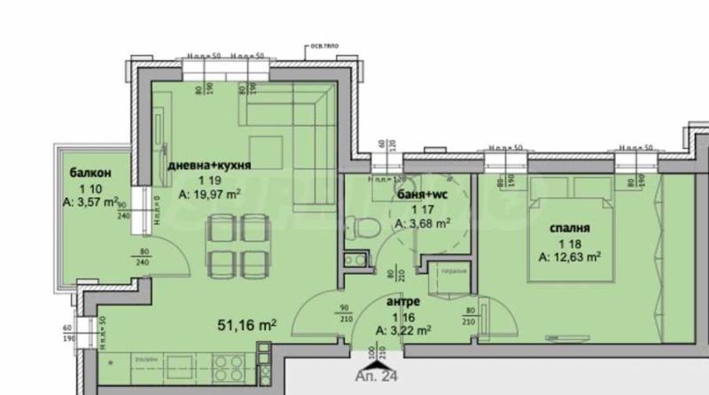
Имотът е с площ от 59,04 кв.м, разположен на 2-ри етаж, с високи тавани и панорамни прозорци, осигуряващи светлина през целия ден.
Разпределение:
антре;
всекидневна с кухня;
спалня;
баня с тоалет;
тераса.
Жилището се издава в степен на завършеност до ключ , качествено ново строителство. Подходящо е както за лично, целогодишно ползване, така и за инвестиция.
Комплексът ще разполага с барбекю зона, детски кът, паркоместа и подземни гаражи, което осигурява комфорт и удобство за живущите.
Без такса поддръжка.
Равда е предпочитано място за отдих и целогодишно живеене спокойно, уютно курортно селище, разположено само на 4 км от Несебър и на 33 км от Бургас, с дълга плажна ивица, подходяща както за почивка, така и за водни спортове.
Очакваме Вашето запитване
Ако желаете да организирате оглед на имот, който Ви интересува, или да посетите някой от нашите офиси, моля свържете се с нас. За да уговорите ден и час за среща или оглед, можете да се обадите на посочения в обявата телефон или да изпратите запитване чрез електронната поща. Нашият консултант ще Ви съдейства с всички необходими подробности и ще уговори удобно за Вас време.
Търсите подходящия за Вас имот?
Не се колебайте да се свържете с нас и да ни разкажете за Вашите нужди и предпочитания. Нашият екип ще проведе задълбочено проучване на пазара, за да Ви предложи имоти, които точно отговарят на Вашите критерии. Разполагаме с изключително портфолио от висококачествени и ексклузивни жилища, които са достъпни само за нашите клиенти. За да сте първите, които ще получите информация за тях свържете се с нас.
Допълнителни услуги
Като ценен клиент на ...
За повече информация свържете се с нас и цитирайте референтния номер на имота. Моля, кажете, че сте видeли обявата в този сайт.
Референтен номер: LXH-135675
Тел: 0885 186 750, 0554 5 86 48
Отговорен брокер:Християн Димитров
Вход
+ Безплатна обява

![Продава 2-стаен област Бургас , с. Равда , 59 кв.м | 42538270 - изображение [2] — Imoti.info Продава 2-стаен област Бургас , с. Равда , 59 кв.м | 42538270 - изображение [2]](http://imotstatic1.focus.bg/imot/photosimotbg/1/809/big/1b176233683534809_sK.jpg)
![Продава 2-стаен област Бургас , с. Равда , 59 кв.м | 42538270 - изображение [3] — Imoti.info Продава 2-стаен област Бургас , с. Равда , 59 кв.м | 42538270 - изображение [3]](http://imotstatic1.focus.bg/imot/photosimotbg/1/809/big/1b176233683534809_Bp.jpg)
![Продава 2-стаен област Бургас , с. Равда , 59 кв.м | 42538270 - изображение [4] — Imoti.info Продава 2-стаен област Бургас , с. Равда , 59 кв.м | 42538270 - изображение [4]](http://imotstatic1.focus.bg/imot/photosimotbg/1/809/big/1b176233683534809_yw.jpg)
![Продава 2-стаен област Бургас , с. Равда , 59 кв.м | 42538270 - изображение [5] — Imoti.info Продава 2-стаен област Бургас , с. Равда , 59 кв.м | 42538270 - изображение [5]](http://imotstatic1.focus.bg/imot/photosimotbg/1/809/big/1b176233683534809_qH.jpg)
![Продава 2-стаен област Бургас , с. Равда , 59 кв.м | 42538270 - изображение [6] — Imoti.info Продава 2-стаен област Бургас , с. Равда , 59 кв.м | 42538270 - изображение [6]](http://imotstatic1.focus.bg/imot/photosimotbg/1/809/big/1b176233683534809_RG.jpg)
![Продава 2-стаен област Бургас , с. Равда , 59 кв.м | 42538270 - изображение [7] — Imoti.info Продава 2-стаен област Бургас , с. Равда , 59 кв.м | 42538270 - изображение [7]](http://imotstatic1.focus.bg/imot/photosimotbg/1/809/big/1b176233683534809_jg.jpg)
![Продава 2-стаен област Бургас , с. Равда , 59 кв.м | 42538270 - изображение [8] — Imoti.info Продава 2-стаен област Бургас , с. Равда , 59 кв.м | 42538270 - изображение [8]](http://imotstatic1.focus.bg/imot/photosimotbg/1/809/big/1b176233683534809_35.jpg)









