📢ЦЕНИ ДИРЕКТНО ОТ ИНВЕСТИТОР - БЕЗ КОМИСИОН ОТ КУПУВАЧА ! 📢 ОФЕРТА : 16167
- Имаме удоволствието да Ви представим нов жилищен комплекс, създаден с внимание към детайла и - усещане за комфорт.
- Проектът се отличава с нискоетажно строителство, модерна визия и богато озеленени общи пространства, които създават усещане за спокойствие и уют.
- Най-голямото предимство на комплекса са функционалните и просторни разпределения, съобразени с нуждите на съвременните семейства.
- Сградите са четириетажни партерен етаж с магазини и апартаменти с индивидуални дворни площи, както и три жилищни нива над тях.
◼ Атрактивна схема на плащане :
20% при подписване на предварителен договор
70% при завършване на сградата и издаване на Акт 15
10% при издаване на Акт 16
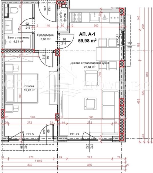
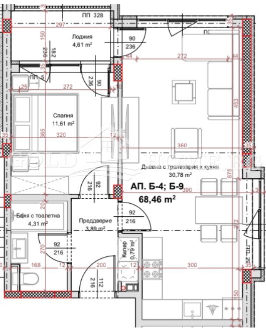
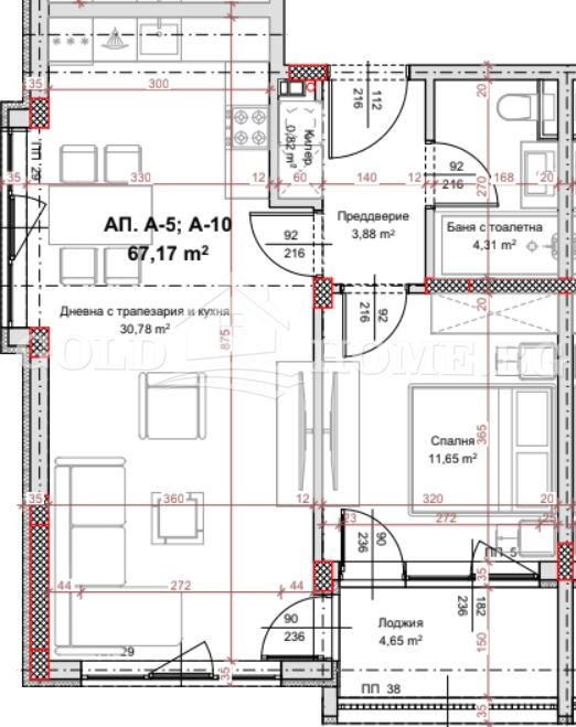
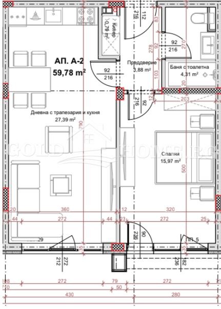
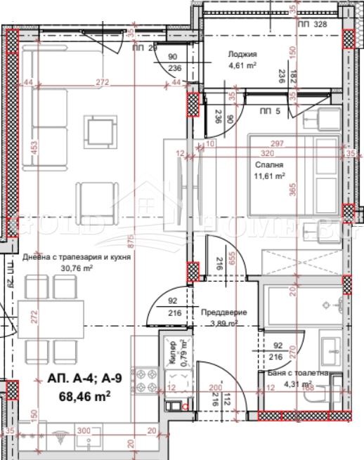
➡️Разпределения :
Двустайни:
- Коридор, просторна дневна с трапезария и кухненски бокс, спалня, баня с тоалетна, килер и тераса.
-Основно предимство на проекта са големите помещения, които се отличават от стандартното масово строителство.
◼ Дневни: от 25 до 30 кв.м.
◼ Спални: от 12 до 17 кв.м.
Налични различни модули и етажни разположения подходящи както за инвестиция, така и за собствено ползване.
- 67,83 кв.м - 89 940 евро
- 73,04 кв.м - 96 851 евро
- 73,32 кв.м - 97 222 евро
- 74,47 кв.м - 98 747 евро
- 76,50 кв.м - 101 439 евро
- 66,25 кв.м + 26,70 кв.м дворно място - 105 202 евро
- 66,47 кв.м + 27,65 кв.м дворно място - 106 112 евро
- 75,63 кв.м + 26,72 кв. м дворно място - 117 653 евро
✔️Характеристики и предимства на комплекса :
- Система за видеонаблюдение и контрол на достъпа, с цел осигуряване на спокойствието и сигурността на собствениците.
- Споделени пространства в богато озеленен двор , пейки , детски площадки и стрийт фитнес.
✔️Степен на завършеност:
- Стени и тавани гипсова мазилка; Под циментова замазка;
- Висококачествена алуминиева дограма троен стъклопакет
- Тераса гранитогрес и стъклени парапети
- Входна врата блиндирана
- Изградени Електро инсталация с монтирани ключове и контакти и ВиК инсталация до тапа
- Подготовка за видеодомофон, кабелна телевизия и интернет
- Общи части на сградата напълно завършени общи части с мраморни плочи , парапети, осветление и - контрол на достъпа.
🏗️ За инвеститора:
- Зад проекта стоят опитни строителни и инвестиционни компании, обединени от обща визия да създават жилища с високо качество, модерна визия и дълготрайна стойност.
- Екипът има богат опит във финансирането, проектирането и реализацията на жилищни сгради от висок клас, което е гаранция за сигурност и надеждност на инвестицията.
🅿️Паркиране:
Паркирането е обезпечено на 100% . Има възможност за покупка на наземни паркоместа .
📅 Срок на изпълнение :
АКТ 14 края на 2026 година .
АКТ 16 се очаква края на 2028 година
📌Локация:
- Комплексът се намира в кв.Остромила - мястото, където градът среща природата предпочитан както от млади семейства, така и от хора, търсещи спокойствие и чист въздух, без да се лишават от удобствата на градския живот. Районът се развива с бързи темпове и предлага идеална среда за модерен и спокоен начин на живот .
➡️'ГОЛД ИМОТИ' Ви предлага, да се възползвате от професионално кредитно посредничество чрез Credit Center при ипотека, потребителски кредит и рефинансиране!
-УСЛУГАТА Е ИЗЦЯЛО БЕЗПЛАТНА!
-ИЗГОТВЯНЕ НА НЯКОЛКО ОФЕРТИ ОТ ВОДЕЩИ БАНКИ!
-НАЙ-ИЗГОДНИ УСЛОВИЯ СПРЯМО ВАШИЯТ ПРОФИЛ!
-НЕ Е НЕОБХОДИМО ДА СЕ РАЗКАРВАТЕ ВЪВ ВСЕКИ КЛОН НА РАЗЛИЧНИ БАНКИ!
➡️ Още атрактивни и актуални оферти може да разгледате на нашият сайт : goldhome.bg
➡️ За повече информация и при интерес за оглед, моля свържете се с нас!
Вход
+ Безплатна обява

![Продава 2-стаен град Пловдив , Остромила , 68 кв.м | 48664482 - изображение [2] — Imoti.info Продава 2-стаен град Пловдив , Остромила , 68 кв.м | 48664482 - изображение [2]](http://imotstatic1.focus.bg/imot/photosimotbg/1/529/big/1b175975430316529_6h.jpg)
![Продава 2-стаен град Пловдив , Остромила , 68 кв.м | 48664482 - изображение [3] — Imoti.info Продава 2-стаен град Пловдив , Остромила , 68 кв.м | 48664482 - изображение [3]](http://imotstatic1.focus.bg/imot/photosimotbg/1/529/big/1b175975430316529_z3.jpg)
![Продава 2-стаен град Пловдив , Остромила , 68 кв.м | 48664482 - изображение [4] — Imoti.info Продава 2-стаен град Пловдив , Остромила , 68 кв.м | 48664482 - изображение [4]](http://imotstatic1.focus.bg/imot/photosimotbg/1/529/big/1b175975430316529_hs.jpg)
![Продава 2-стаен град Пловдив , Остромила , 68 кв.м | 48664482 - изображение [5] — Imoti.info Продава 2-стаен град Пловдив , Остромила , 68 кв.м | 48664482 - изображение [5]](http://imotstatic1.focus.bg/imot/photosimotbg/1/529/big/1b175975430316529_6f.jpg)
![Продава 2-стаен град Пловдив , Остромила , 68 кв.м | 48664482 - изображение [6] — Imoti.info Продава 2-стаен град Пловдив , Остромила , 68 кв.м | 48664482 - изображение [6]](http://imotstatic1.focus.bg/imot/photosimotbg/1/529/big/1b175975430316529_Mg.jpg)
![Продава 2-стаен град Пловдив , Остромила , 68 кв.м | 48664482 - изображение [7] — Imoti.info Продава 2-стаен град Пловдив , Остромила , 68 кв.м | 48664482 - изображение [7]](http://imotstatic1.focus.bg/imot/photosimotbg/1/529/big/1b175975430316529_bU.jpg)
![Продава 2-стаен град Пловдив , Остромила , 68 кв.м | 48664482 - изображение [8] — Imoti.info Продава 2-стаен град Пловдив , Остромила , 68 кв.м | 48664482 - изображение [8]](http://imotstatic1.focus.bg/imot/photosimotbg/1/529/big/1b175975430316529_mT.jpg)
![Продава 2-стаен град Пловдив , Остромила , 68 кв.м | 48664482 - изображение [9] — Imoti.info Продава 2-стаен град Пловдив , Остромила , 68 кв.м | 48664482 - изображение [9]](http://imotstatic1.focus.bg/imot/photosimotbg/1/529/big/1b175975430316529_Xn.jpg)









