Просторен тристаен апартамент в Овча купел | 103.60 кв.м | 202 000 | Сграда пред Акт 16
📍 Местоположение: кв. Овча купел един от най-перспективните райони за инвестиция и живеене в София. В близост до бъдеща метростанция, градски транспорт, супермаркети и образователни институции.
Сградата е пред Акт 16 стабилна конструкция и съвременен дизайн.
Детайли:
Етаж: 3
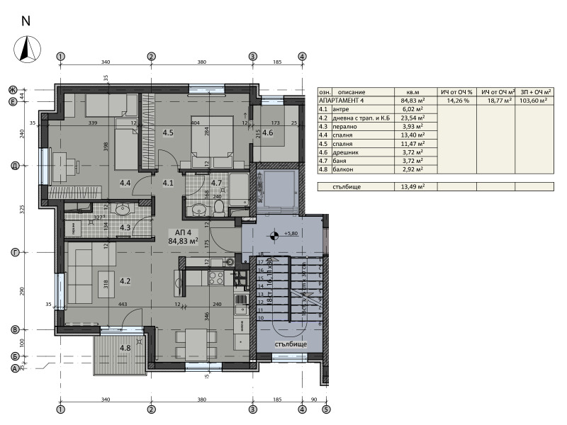
Обща площ: 103.60 кв.м
Чиста площ: 84.83 кв.м
Изложение: Юг/Запад естествена светлина през целия ден
Разпределение:
Хол с кухня отворено пространство с достъп до тераса
Две спални, като едната е със собствен дрешник
Две отделни бани с тоалетна
Простор и функционалност за максимален комфорт
Предлага се възможност за закупуване на двойно покрито паркомясто на партер
Цена: 202 000 евро
Идеален както за живеене, така и за инвестиция
Водещ брокер - Никола Апостолов
Вход
+ Безплатна обява

![Продава 3-стаен град София , Овча купел , 104 кв.м | 49376740 - изображение [2] — Imoti.info Продава 3-стаен град София , Овча купел , 104 кв.м | 49376740 - изображение [2]](http://cdn3.focus.bg/imot/photosimotbg/1/295/big/1c176242893032295_Le.jpg)
![Продава 3-стаен град София , Овча купел , 104 кв.м | 49376740 - изображение [3] — Imoti.info Продава 3-стаен град София , Овча купел , 104 кв.м | 49376740 - изображение [3]](http://cdn3.focus.bg/imot/photosimotbg/1/295/big/1c176242893032295_oN.jpg)
![Продава 3-стаен град София , Овча купел , 104 кв.м | 49376740 - изображение [4] — Imoti.info Продава 3-стаен град София , Овча купел , 104 кв.м | 49376740 - изображение [4]](http://cdn3.focus.bg/imot/photosimotbg/1/295/big/1c176242893032295_dK.jpg)
![Продава 3-стаен град София , Овча купел , 104 кв.м | 49376740 - изображение [5] — Imoti.info Продава 3-стаен град София , Овча купел , 104 кв.м | 49376740 - изображение [5]](http://cdn3.focus.bg/imot/photosimotbg/1/295/big/1c176242893032295_MT.jpg)
![Продава 3-стаен град София , Овча купел , 104 кв.м | 49376740 - изображение [6] — Imoti.info Продава 3-стаен град София , Овча купел , 104 кв.м | 49376740 - изображение [6]](http://cdn3.focus.bg/imot/photosimotbg/1/295/big/1c176242893032295_la.jpg)
![Продава 3-стаен град София , Овча купел , 104 кв.м | 49376740 - изображение [7] — Imoti.info Продава 3-стаен град София , Овча купел , 104 кв.м | 49376740 - изображение [7]](http://cdn3.focus.bg/imot/photosimotbg/1/295/big/1c176242893032295_eT.jpg)
![Продава 3-стаен град София , Овча купел , 104 кв.м | 49376740 - изображение [8] — Imoti.info Продава 3-стаен град София , Овча купел , 104 кв.м | 49376740 - изображение [8]](http://cdn3.focus.bg/imot/photosimotbg/1/295/big/1c176242893032295_jn.jpg)
![Продава 3-стаен град София , Овча купел , 104 кв.м | 49376740 - изображение [9] — Imoti.info Продава 3-стаен град София , Овча купел , 104 кв.м | 49376740 - изображение [9]](http://cdn3.focus.bg/imot/photosimotbg/1/295/big/1c176242893032295_4Y.jpg)
![Продава 3-стаен град София , Овча купел , 104 кв.м | 49376740 - изображение [10] — Imoti.info Продава 3-стаен град София , Овча купел , 104 кв.м | 49376740 - изображение [10]](http://cdn3.focus.bg/imot/photosimotbg/1/295/big/1c176242893032295_pP.jpg)
![Продава 3-стаен град София , Овча купел , 104 кв.м | 49376740 - изображение [11] — Imoti.info Продава 3-стаен град София , Овча купел , 104 кв.м | 49376740 - изображение [11]](http://cdn3.focus.bg/imot/photosimotbg/1/295/big/1c176242893032295_wS.jpg)
![Продава 3-стаен град София , Овча купел , 104 кв.м | 49376740 - изображение [12] — Imoti.info Продава 3-стаен град София , Овча купел , 104 кв.м | 49376740 - изображение [12]](http://cdn3.focus.bg/imot/photosimotbg/1/295/big/1c176242893032295_ra.jpg)
![Продава 3-стаен град София , Овча купел , 104 кв.м | 49376740 - изображение [13] — Imoti.info Продава 3-стаен град София , Овча купел , 104 кв.м | 49376740 - изображение [13]](http://cdn3.focus.bg/imot/photosimotbg/1/295/big/1c176242893032295_6y.jpg)
![Продава 3-стаен град София , Овча купел , 104 кв.м | 49376740 - изображение [14] — Imoti.info Продава 3-стаен град София , Овча купел , 104 кв.м | 49376740 - изображение [14]](http://cdn3.focus.bg/imot/photosimotbg/1/295/big/1c176242893032295_PG.jpg)
![Продава 3-стаен град София , Овча купел , 104 кв.м | 49376740 - изображение [15] — Imoti.info Продава 3-стаен град София , Овча купел , 104 кв.м | 49376740 - изображение [15]](http://cdn3.focus.bg/imot/photosimotbg/1/295/big/1c176242893032295_Hc.jpg)
![Продава 3-стаен град София , Овча купел , 104 кв.м | 49376740 - изображение [16] — Imoti.info Продава 3-стаен град София , Овча купел , 104 кв.м | 49376740 - изображение [16]](http://cdn3.focus.bg/imot/photosimotbg/1/295/big/1c176242893032295_sf.jpg)
![Продава 3-стаен град София , Овча купел , 104 кв.м | 49376740 - изображение [17] — Imoti.info Продава 3-стаен град София , Овча купел , 104 кв.м | 49376740 - изображение [17]](http://cdn3.focus.bg/imot/photosimotbg/1/295/big/1c176242893032295_Du.jpg)








