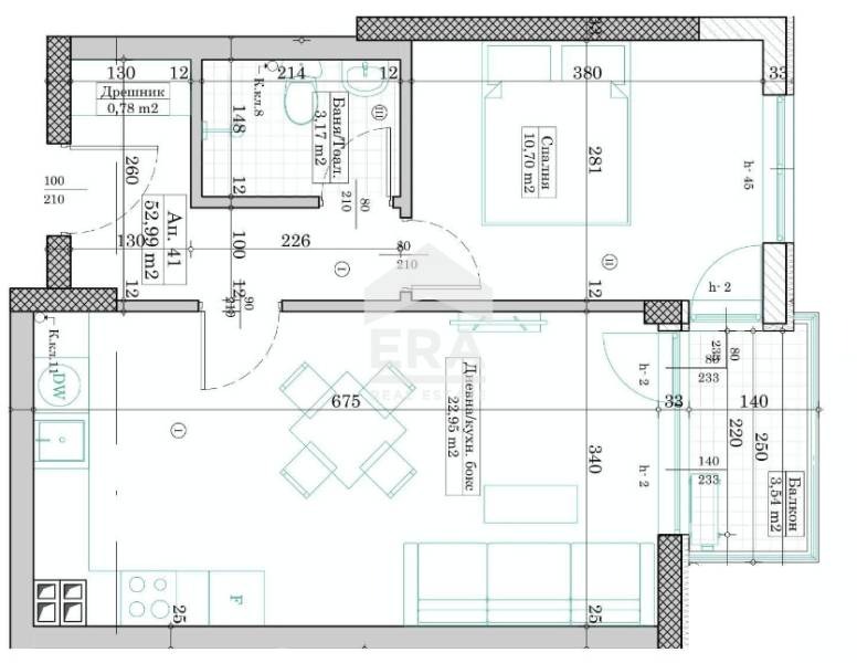
ЕРА Вива продава двустаен апартамент в новострояща се жилищна сграда в кв. Левски, гр. Варна. Жилището е със застроена площ от 52.99 кв.м. /61.52 кв.м. с общите части/ и е разположено на седми етаж. Имотът е функционално разпределен, включващ просторна дневна с кухненски кът /22.95 кв.м./, спалня с дрешник /10.70 кв.м./, баня с тоалетна /3.17 кв.м./ и балкон /3.54 кв.м./. Стаите са светли, с правилни форми. Степен на завършеност по БДС - на шпакловка и замазка, с поставена ПВЦ дограма и блиндирана входна врата. Отоплението е предвидено на ток.
Mодерна новострояща се сграда, която ще впечатли с изключителен стил и качество. Сградата ще разполага с асансьор и домофонна система за удобство и сигурност на живущите. Освен това, има възможност за закупуване на открито или закрито паркомясто. Използваните материали и технологии са съобразени с последните иновации в строителния бранш, гарантирайки устойчивост и енергийна ефективност. Очаквано въвеждане в експлоатация май 2026 г.
Район с отлично изградена инфраструктура. В близост до УМБАЛ Света Марина, Втори корпус на Икономически университет, детска градина, магазини, ателиета за услуги и спирки на градския транспорт.
Оферта 1009699
Вход
+ Безплатна обява

![Продава 2-стаен град Варна , Левски 1 , 61 кв.м | 49401922 - изображение [2] — Imoti.info Продава 2-стаен град Варна , Левски 1 , 61 кв.м | 49401922 - изображение [2]](http://imotstatic3.focus.bg/imot/photosimotbg/1/917/big/1b176183071101917_Wm.jpg)
![Продава 2-стаен град Варна , Левски 1 , 61 кв.м | 49401922 - изображение [3] — Imoti.info Продава 2-стаен град Варна , Левски 1 , 61 кв.м | 49401922 - изображение [3]](http://imotstatic3.focus.bg/imot/photosimotbg/1/917/big/1b176183071101917_pJ.jpg)
![Продава 2-стаен град Варна , Левски 1 , 61 кв.м | 49401922 - изображение [4] — Imoti.info Продава 2-стаен град Варна , Левски 1 , 61 кв.м | 49401922 - изображение [4]](http://imotstatic3.focus.bg/imot/photosimotbg/1/917/big/1b176183071101917_cM.jpg)
![Продава 2-стаен град Варна , Левски 1 , 61 кв.м | 49401922 - изображение [5] — Imoti.info Продава 2-стаен град Варна , Левски 1 , 61 кв.м | 49401922 - изображение [5]](http://imotstatic3.focus.bg/imot/photosimotbg/1/917/big/1b176183071101917_a5.jpg)
![Продава 2-стаен град Варна , Левски 1 , 61 кв.м | 49401922 - изображение [6] — Imoti.info Продава 2-стаен град Варна , Левски 1 , 61 кв.м | 49401922 - изображение [6]](http://imotstatic3.focus.bg/imot/photosimotbg/1/917/big/1b176183071101917_lD.jpg)
![Продава 2-стаен град Варна , Левски 1 , 61 кв.м | 49401922 - изображение [7] — Imoti.info Продава 2-стаен град Варна , Левски 1 , 61 кв.м | 49401922 - изображение [7]](http://imotstatic3.focus.bg/imot/photosimotbg/1/917/big/1b176183071101917_fj.jpg)
![Продава 2-стаен град Варна , Левски 1 , 61 кв.м | 49401922 - изображение [8] — Imoti.info Продава 2-стаен град Варна , Левски 1 , 61 кв.м | 49401922 - изображение [8]](http://imotstatic3.focus.bg/imot/photosimotbg/1/917/big/1b176183071101917_Je.jpg)
![Продава 2-стаен град Варна , Левски 1 , 61 кв.м | 49401922 - изображение [9] — Imoti.info Продава 2-стаен град Варна , Левски 1 , 61 кв.м | 49401922 - изображение [9]](http://imotstatic3.focus.bg/imot/photosimotbg/1/917/big/1b176183071101917_wD.jpg)
![Продава 2-стаен град Варна , Левски 1 , 61 кв.м | 49401922 - изображение [10] — Imoti.info Продава 2-стаен град Варна , Левски 1 , 61 кв.м | 49401922 - изображение [10]](http://imotstatic3.focus.bg/imot/photosimotbg/1/917/big/1b176183071101917_mk.jpg)









