Продава  2-стаен град София , Левски , 62 кв.м | 54357397
10 снимки

Продава 2-стаен в град София, Левски, 62 кв.м

158 700 Виж на картата
310 390,22 лв.
Цената е с включено ДДС
Квадратура: 62 кв.мЕтаж: 6-ти Вид строителство: Тухла, 2026 г.
ТЕЦ: -Газ: -
Описание на имота:
БЕЗ КОМИСИОННА ОТ КУПУВАЧА!
Към колеги - 3 % комисионна!

Оферта : 2034
Агенция Trust Broker Solutions предлага на Вашето внимание двустаен апартамент в новострояща се бутикова сграда в ж.к. 'Левски'.

РАЗПРЕДЕЛЕНИЕ:
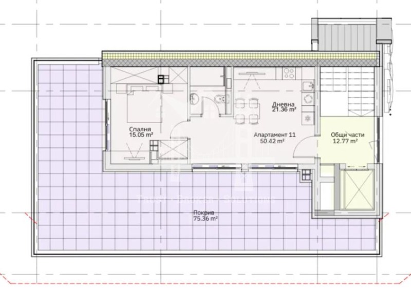
Апартамента се състои от: стая, хол с кухненски бокс, баня с тоалетна, тераса (75 м2). Може да закупите склад, паркомясто или гараж.

ЛОКАЦИЯ:
Намира се в ж.к. 'Левски' на ул. 'Летоструй'. Квартал Левски: спокоен жилищен район с добри транспортни връзки и бърз достъп до центъра по бул. Владимир Вазов и Ботевградско шосе .
В близост има магазини, училища, детски градини и зелени площи предпочитана среда за млади семейства и наематели

ЗА ПРОЕКТА:
Сграда, която се отличава с иновативния си подход към устойчивото строителство и опазването на околната среда. В сърцето на този впечатляващ проект се намира вертикалната градина единствена по рода си инсталация, която не само придава естетически облик на сградата, но и играе важна роля в пречистването на въздуха.
Тази изумителна вертикална градина е проектирана с внимание към детайла и подбор на растения, които са известни със своите свойства за филтриране на замърсителите. Чрез естествени процеси, растенията в градината абсорбират въглероден диоксид и отделят кислород, подобрявайки качеството на въздуха за всички обитатели и околните райони. Използвайки иновации в напояването и поддръжката, проекта не само осигурява свежест и зеленина, но и създава микроклимат, който спомага за по-доброто здраве и благосъстояние на хората.
Сградата е пример за това как архитектурата може да се интегрира с природата, предоставяйки решение за един от най-належащите проблеми на съвременния свят замърсяването на въздуха. Сградата не е просто строителен проект, а символ на устойчивото бъдеще, в което природата и човешката дейност могат да съжителстват в хармония.
Сградата разполага с 11 бутикови апартамента с високи тавани и отлична гледка. Всички тераси са ориентирани на изток и юг, за да можелесно и удобно да се наблюдава излитането и кацането на самолетите на изгрев и на залез.
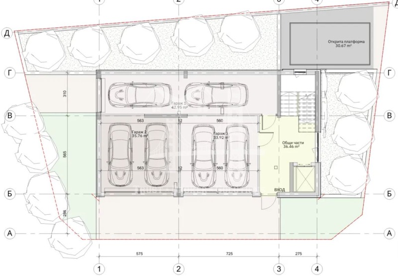
Сградата разполага с 6 гаража на партера, 8 паркоместа на сутерена. До тях се достига с рампа.
На разположения са 9 складови помещения с лесен достъп.
Осигурени са зелени площи и вертикална градина с цел създаване на максимален комфорт на жителите и максимално пречистване навъздуха в района.
В сърцето на проекта са заложени иновативен дизайн, който не само отразява съвременните архитектурни тенденции, но и отговаря на нуждите и желанията на съвременния градски живот. Сградата е проектирана с внимание към детайла и стремеж към устойчивост, като сме използвали съвременни технологии и екологични материали.
Екипът от архитекти и дизайнери се вдъхнови от формите и цветовете на природата, което ни позволява да създадем пространство, което е не само функционално, но и естетически приятно. Гъвкавите интериорни решения и отворените пространства насърчават социализацията и взаимодействията между обитателите, като същевременно предлагат комфорт и уют.

ПЛЮСОВЕ:
✅ Вертикална градина на фасадата на сградата, която абсорбира въглеродния диоксид, задържа прахови частици и произвежда кислород.
✅ Строителство, изградено от материали клас А.
✅ Фотокаталична фасадна боя, съдържаща TiO2 за улавяне на замърсители от въздуха.
✅ Висок клас дограма за осигуряване на ниски енергийни разходи за отопление и охлаждане.
✅ Вътрешните и външните стени, изградени от Wienerberger.
✅ Сграда, лишена от шум и от влага.

ДОПЪЛНИТЕЛНА ИНФОРМАЦИЯ:
✅ Разрешение за ползване (Акт 16) към 12.2026 г.
✅ Вид строителство: Тухла;
✅ Етаж: 6 от 6;
✅ Площ: 61.56 м2, балкон 75.36 м2;
✅ Изложение: Юг - запад;
✅ Отопление: Електричество.

Агенция Trust Broker Solutions предлага напълно безплатно кредитни консултации. Работим с Credit Navigator - регистрирани в БНБ като независим банков консултант.
За още оферти посетете сайта ни: tbsestates.bg или се обадете на 0878878386.
Водещ брокер: Красимир Попов.
Продава  2-стаен град София , Левски , 62 кв.м | 54357397 - изображение [2]
Продава  2-стаен град София , Левски , 62 кв.м | 54357397 - изображение [3]
Продава  2-стаен град София , Левски , 62 кв.м | 54357397 - изображение [4]
Продава  2-стаен град София , Левски , 62 кв.м | 54357397 - изображение [5]Виж следващите 6 снимки
Цена

Цена на имота: 158 700 €

310 390,22 лв.

Цена на кв.м: 2559,677 €

5 006,29 лв. на кв.м

Абонирай ме за известия за промяна в цената
Локация

град София, Левски

mapПокажи на картата
Статистика
  • 2разглеждания
  • 0добавяния в Бележника
Обявата е публикувана на 10 октомври 2025
Попитай продавача
087XXX... (покажи)

ТРЪСТ БРОКЕР СЪЛЮШЪНС
град София бул. 'Свети Наум' 25
Продава 2-стаен в град София, Левски, 62 кв.м
158 700 €
62 кв.м6-ти Тухла, 2026 г.
call20875364181