Референтен номер: 3016.
АКТ 16! ПАРКОМЯСТО ВКЛЮЧЕНО В ЦЕНАТА! СРЕДЕН ЕТАЖ! ЛУКСОЗНА МАЛКА СГРАДА!
Предлагаме ви двустаен апартамент с паркомясто в малка луксозна сграда в кв. Остромила!
Основни характеристики на имота:
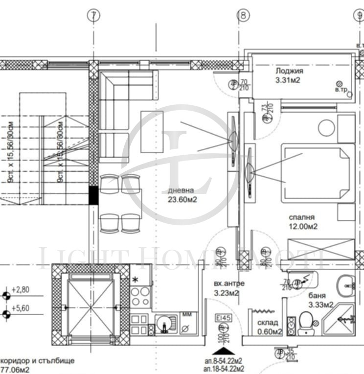
- Площ: 62 кв.м
- Разпределение: Хол с кухненски бокс, спалня, баня с тоалетна, антре и тераса
- Вид строителство: Тухла (с Акт 16 от 2025г.)
- Етажност: 3 ет. от 4 ет. (асансьор)
- Паркиране: Паркомясто включено в цената
Апартаментът се намира в новопостроен жилищен комплекс в тихата и спокойна част на кв. Остромила! Жилището се продава завършено по БДС: шпакловка и замазка, ВиК на тапа, цялостно окабеляване и постваена входна врата, което ви дава възможността да го обзаведете по ваш собствен вкус! Чудесен имот, както за живеене, така и за закупуване с цел отдаване под наем!
За повече информация и организиране на огледи, моля, свържете се с нас на посочения номер, като ще Ви е необходим следният референтен номер: 3016
Лайт Хоум имоти е доверен партньор на най-големите банкови институции в страната и съдейства за преференциални условия при нужда от кредитиране. Ще получите юридическо съдействие през целия процес на сделката, както и съдействие при подготовка, подаване и получаване на всички необходими документи за сделката.
Acceso
+ Anuncio gratuito

![Продава 2-стаен град Пловдив , Остромила , 62 кв.м | 62588349 - изображение [2] — Imoti.info Продава 2-стаен град Пловдив , Остромила , 62 кв.м | 62588349 - изображение [2]](http://imotstatic3.focus.bg/imot/photosimotbg/1/858/big/1b175984224191858_Kh.jpg)
![Продава 2-стаен град Пловдив , Остромила , 62 кв.м | 62588349 - изображение [3] — Imoti.info Продава 2-стаен град Пловдив , Остромила , 62 кв.м | 62588349 - изображение [3]](http://imotstatic3.focus.bg/imot/photosimotbg/1/858/big/1b175984224191858_Vn.jpg)
![Продава 2-стаен град Пловдив , Остромила , 62 кв.м | 62588349 - изображение [4] — Imoti.info Продава 2-стаен град Пловдив , Остромила , 62 кв.м | 62588349 - изображение [4]](http://imotstatic3.focus.bg/imot/photosimotbg/1/858/big/1b175984224191858_3G.jpg)
![Продава 2-стаен град Пловдив , Остромила , 62 кв.м | 62588349 - изображение [5] — Imoti.info Продава 2-стаен град Пловдив , Остромила , 62 кв.м | 62588349 - изображение [5]](http://imotstatic3.focus.bg/imot/photosimotbg/1/858/big/1b175984224191858_fF.jpg)
![Продава 2-стаен град Пловдив , Остромила , 62 кв.м | 62588349 - изображение [6] — Imoti.info Продава 2-стаен град Пловдив , Остромила , 62 кв.м | 62588349 - изображение [6]](http://imotstatic3.focus.bg/imot/photosimotbg/1/858/big/1b175984224191858_Ci.jpg)









