Продава  3-стаен град Пловдив , Христо Смирненски , 132 кв.м | 69419372
4 bilder

Продава 3-стаен в град Пловдив, Христо Смирненски, 132 кв.м

VIP
163 000
318 800,29 лв.
Не се начислява ДДС
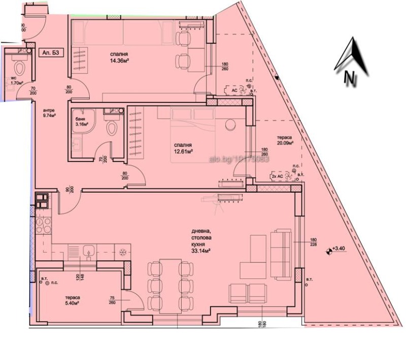
Areal: 132 кв.мEtasje 2-ри Byggetype Тухла, 2024 г.
Sentralvarme: -Gass: -
Eiendomsbeskrivelse:
Тристаен апартамент в нова сграда с луксозни общи части с АКТ 16. Жилището разполага с 2 спални, хол с трапезария и кухня, 2 санитарни помещения, тераси и антре. Към апартамента принадлежи изба. Сградата разполага със собствен неголям, облагороден двор с детска площадка, луксозни довършителни работи в общите части и асансьор. Може да бъде подсигурено паркомясто.
Завършен по БДС шпакловка, замаска, тапа, до ключ на ел. инсталация. Входна, висок клас блиндирана (и пожароустойчива) врата, видеодомофон с управление на ел. входна брава, висок клас Алуминиева дограма, положени са трасета за климатична система и др. екстри в цената.
Сградата е нова, завършена с Акт 16, контрол на достъпа и видеонаблюдение, видеодомофон за всеки апартамент, асансьор от партер. Луксозно завършени общи части с гранит, мрамор желязо и дървен фурнир. Съвременно и качествено и иновативно стоителство с внимание към качество и устойчивост на вложените материали. Окачена вентилируема фасадна система и двоен под на външните части (тераси).
Собствен двор с детска площадка. Може да бъде подсигурено паркомясто.
Намира се в близост до парк Отдих и култура, Гребна база и Пещерско шосе.

Жилището може да бъде финансирано с ипотечен кредит и съдействаме при необходимост.
Egenskaper:
  • Асансьор
  • С гараж
  • С паркинг
  • Контрол на достъпа
Продава  3-стаен град Пловдив , Христо Смирненски , 132 кв.м | 69419372 - изображение [2]
Продава  3-стаен град Пловдив , Христо Смирненски , 132 кв.м | 69419372 - изображение [3]
Продава  3-стаен град Пловдив , Христо Смирненски , 132 кв.м | 69419372 - изображение [4]
Pris

Eiendomspris: 163 000 €

318 800,29 лв.

Pris на кв.м: 1234,848 €

2 415,15 лв. на кв.м

Abonner meg for varsler om prisendring
plassering

град Пловдив, Христо Смирненски

Statistikk
  • 5visninger
  • 0sparer
Annonsen er oppdatert pr 2 октомври 2025
Kontakt selger
087XXX... (forestilling)

МДК БЪЛГАРИЯ
град Пловдив бул. Хр.Ботев 124
Продава 3-стаен в град Пловдив, Христо Смирненски, 132 кв.м
163 000 €
132 кв.м2-ри Тухла, 2024 г.
call20877100115