Имолукс с удоволствие ви предлага една съвременна, кокетна, умна и функционална къща с акт 16 от 2025 г, в малко комплексче от отворен тип с няколко вече населени с млади семейства къщи и само на 20 минути от центъра на София;
Изпълнени са с изключително качество от утвърдена с годините строителна фирма;
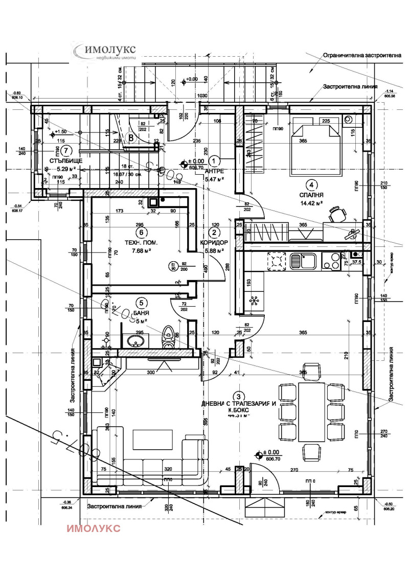
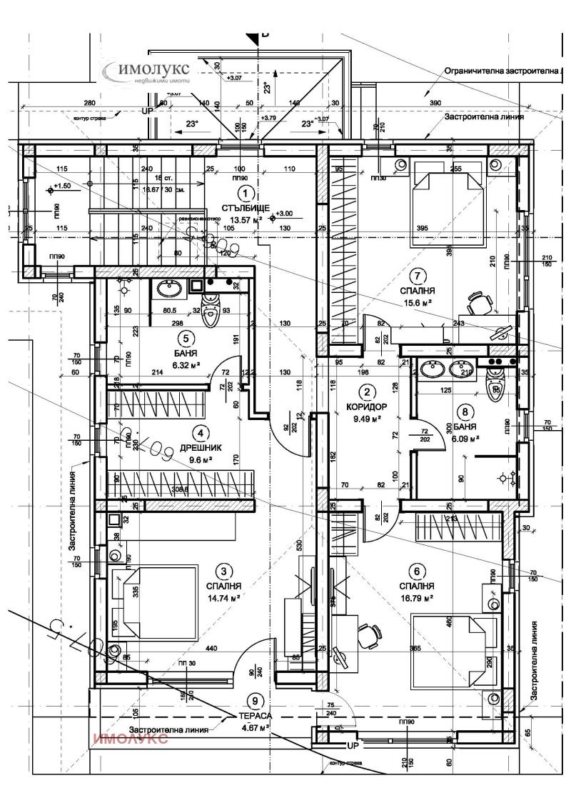
Разпределение: има четири самостоятелни спални, просторен хол със светла кухня, три бани с тоалетни, техническо помещение, тераса и около 60 кв.м. подпокривно пространство с капандури, което е като бонус, извън общата площ от 235 кв.м. на двата основни етажа;
Къщата е с целодневно слънцегреене, на няколко минути от главния път София - Калотина, в кв. Бобен на с. Хераково, общ. Божурище;
Има изграден нов централен водопровод с голям дебит, както и пречиствателна инсталация за отпадните води към всяка къща, с тази вода може да се напоява; Отоплението е решено с изводи за радиатори, има различни варианти, но най-икономичния е с термопомпа и/ или инсталиране на соларни панели на покрива. Предвидени са изводи и за климатици. Къщите са със сертификат за енергийна ефективност клас А, които ще ви бъдат предоставени; Проекта е за паркоместа в двора, при желание, впоследствие могат да бъдат покрити;
На новите собственици се предлага възможност за довършителни работи по техен проект.
Заповядайте!С ключ сме;
Контакт и огледи: Галя Иванова, 0888 219 632
Вход
+ Безплатна обява

![Продава Къща област София , гр. Божурище , 235 кв.м | 79428632 - изображение [2] — Imoti.info Продава Къща област София , гр. Божурище , 235 кв.м | 79428632 - изображение [2]](http://imotstatic3.focus.bg/imot/photosimotbg/1/424/big/1j176045011273424_RC.jpg)
![Продава Къща област София , гр. Божурище , 235 кв.м | 79428632 - изображение [3] — Imoti.info Продава Къща област София , гр. Божурище , 235 кв.м | 79428632 - изображение [3]](http://imotstatic3.focus.bg/imot/photosimotbg/1/424/big/1j176045011273424_8R.jpg)
![Продава Къща област София , гр. Божурище , 235 кв.м | 79428632 - изображение [4] — Imoti.info Продава Къща област София , гр. Божурище , 235 кв.м | 79428632 - изображение [4]](http://imotstatic3.focus.bg/imot/photosimotbg/1/424/big/1j176045011273424_KE.jpg)
![Продава Къща област София , гр. Божурище , 235 кв.м | 79428632 - изображение [5] — Imoti.info Продава Къща област София , гр. Божурище , 235 кв.м | 79428632 - изображение [5]](http://imotstatic3.focus.bg/imot/photosimotbg/1/424/big/1j176045011273424_tL.jpg)
![Продава Къща област София , гр. Божурище , 235 кв.м | 79428632 - изображение [6] — Imoti.info Продава Къща област София , гр. Божурище , 235 кв.м | 79428632 - изображение [6]](http://imotstatic3.focus.bg/imot/photosimotbg/1/424/big/1j176045011273424_eF.jpg)
![Продава Къща област София , гр. Божурище , 235 кв.м | 79428632 - изображение [7] — Imoti.info Продава Къща област София , гр. Божурище , 235 кв.м | 79428632 - изображение [7]](http://imotstatic3.focus.bg/imot/photosimotbg/1/424/big/1j176045011273424_DB.jpg)
![Продава Къща област София , гр. Божурище , 235 кв.м | 79428632 - изображение [8] — Imoti.info Продава Къща област София , гр. Божурище , 235 кв.м | 79428632 - изображение [8]](http://imotstatic3.focus.bg/imot/photosimotbg/1/424/big/1j176045011273424_2F.jpg)
![Продава Къща област София , гр. Божурище , 235 кв.м | 79428632 - изображение [9] — Imoti.info Продава Къща област София , гр. Божурище , 235 кв.м | 79428632 - изображение [9]](http://imotstatic3.focus.bg/imot/photosimotbg/1/424/big/1j176045011273424_9C.jpg)
![Продава Къща област София , гр. Божурище , 235 кв.м | 79428632 - изображение [10] — Imoti.info Продава Къща област София , гр. Божурище , 235 кв.м | 79428632 - изображение [10]](http://imotstatic3.focus.bg/imot/photosimotbg/1/424/big/1j176045011273424_vm.jpg)
![Продава Къща област София , гр. Божурище , 235 кв.м | 79428632 - изображение [11] — Imoti.info Продава Къща област София , гр. Божурище , 235 кв.м | 79428632 - изображение [11]](http://imotstatic3.focus.bg/imot/photosimotbg/1/424/big/1j176045011273424_vV.jpg)
![Продава Къща област София , гр. Божурище , 235 кв.м | 79428632 - изображение [12] — Imoti.info Продава Къща област София , гр. Божурище , 235 кв.м | 79428632 - изображение [12]](http://imotstatic3.focus.bg/imot/photosimotbg/1/424/big/1j176045011273424_eP.jpg)
![Продава Къща област София , гр. Божурище , 235 кв.м | 79428632 - изображение [13] — Imoti.info Продава Къща област София , гр. Божурище , 235 кв.м | 79428632 - изображение [13]](http://imotstatic3.focus.bg/imot/photosimotbg/1/424/big/1j176045011273424_MS.jpg)
![Продава Къща област София , гр. Божурище , 235 кв.м | 79428632 - изображение [14] — Imoti.info Продава Къща област София , гр. Божурище , 235 кв.м | 79428632 - изображение [14]](http://imotstatic3.focus.bg/imot/photosimotbg/1/424/big/1j176045011273424_2.jpg)
![Продава Къща област София , гр. Божурище , 235 кв.м | 79428632 - изображение [15] — Imoti.info Продава Къща област София , гр. Божурище , 235 кв.м | 79428632 - изображение [15]](http://imotstatic3.focus.bg/imot/photosimotbg/1/424/big/1j176045011273424_2E.jpg)










