Продава  2-стаен град София , Модерно предградие , 66 кв.м | 83963546
6 снимки

Продава 2-стаен в град София, Модерно предградие, 66 кв.м

126 445
247 304,92 лв.
Цената е с включено ДДС
Квадратура: 66 кв.мЕтаж: 3-ти Вид строителство: Тухла
ТЕЦ: НЕГаз: НЕ
Описание на имота:
Взет АКТ 14. Продажба на двустаен апартамент в новострояща се сграда в кв. Модерно предградие.
Апартаментът ще бъде завършен с подови настилки ламинат и/или гранитогрес; стени и тавани боядисани с латекс; санитарни помещения теракота и фаянс; осветление, контакти и ключове във всички помещения.
Функционално разпределение с правилни форми, просторни и светли помещения.
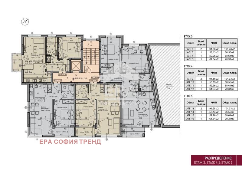
Обща площ на жилището: 58.13 кв.м., застоена площ: 66,55 кв.м.
Разпределение: предверие /4,77 кв.м./, дневна с трапезария и кухненски бокс /25.51 кв.м./, спалня /12,17 кв.м./, баня с тоалетна /4,18 кв.м./, склад и тераса /5,00 кв.м/.
Възможност за закупуване на надземни гаражи и паркоместа.
Степен на завършеност БДС.
Свободни апартаменти от този тип на втори, трети и четвърти етаж в сградата.
Изложение: Югоизток, Югозапад
Акт 16 - края на 2026 г.
Шест етажна сграда с партерно ниво гаражи и паркоместа.
Общо 18 апартамента в сградата - двустайни и тристайни жилища.
Сградата е в непосредствена близост до бул. Сливница

Оферта 0115684
Особености:
  • С преход
  • Асансьор
Продава  2-стаен град София , Модерно предградие , 66 кв.м | 83963546 - изображение [2]
Продава  2-стаен град София , Модерно предградие , 66 кв.м | 83963546 - изображение [3]
Продава  2-стаен град София , Модерно предградие , 66 кв.м | 83963546 - изображение [4]
Продава  2-стаен град София , Модерно предградие , 66 кв.м | 83963546 - изображение [5]Виж следващите 2 снимки
Цена

Цена на имота: 126 445 €

247 304,92 лв.

Цена на кв.м: 1915,833 €

3 747,04 лв. на кв.м

Абонирай ме за известия за промяна в цената
Локация

град София, Модерно предградие

Статистика
  • 15разглеждания
  • 0добавяния в Бележника
Обявата е публикувана на 7 октомври 2025
Попитай продавача
089XXX... (покажи)
Брокер
//photos.imoti.info/assets/images/brokerspicts/12520585677669717.webp
Мария Търговска
0899 808182, 0896 80 79 78

ЕРА СОФИЯ ТРЕНД
град София бул. Гоце Делчев 48
Продава 2-стаен в град София, Модерно предградие, 66 кв.м
126 445 €
66 кв.м3-ти Тухла
call20899808182