Продава  Офис град София , Кръстова вада , 113 кв.м | 87386487
8 снимки

Продава Офис в град София, Кръстова вада, 113 кв.м

402 000
786 243,66 лв.
Цената е без ДДС
Квадратура: 113 кв.мЕтаж: 3-ти Вид строителство: Тухла, 2025 г.
ТЕЦ: НЕГаз: ДА
Описание на имота:
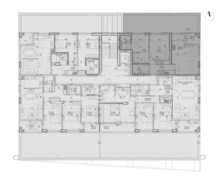
ЕРА Голд Ви представя представителен офис с просторна тераса за продажба в нова луксозна сграда пред АКТ 16 на бул. Черни връх в кв. Кръстова вада.

Разпределение: Входно антре с техническо помещение, 3 работни пространства, 2 бани с тоалетна и голяма тераса 42 кв. м. Изложение: Североизток.
Площ: 113 кв. м.
Застроена площ: 99 кв. м.

Предава се на мазилка Baumit Ratio 1000L с 5 мм шумоизолация, тераси с двоен под, входни блиндирани врати от Solid 55 и монтирани двуконтурен газов котел Viessmann и изградена система за подово отопление Опция за завършване до ключ.

ДЕТАЙЛИ
Тухли: 'Wienerberger' porotherm 25 N+F
Дограма: алуминиеви профили Reynaers Master Line 8
Троен стъклопакет с външно стъкло AGC StopRay Vision 70
Каменна окачена фасада с 3 см дебелина на камъка
Топлоизолация фасада: Rockwool
Мазилки външни: Baumit CreativTop
Сухо строителство: Knauf
Хидроизолация: 'Sika'
Луксозни общи части с настилки от мрамор, предвидена рецепция и портиер
Контрол на достъп с лицево разпознаване
Видеонаблюдение в общите части и околното пространство
Асансьор: Високоскоростен Smart KONE за 15 човека

Сградата разполага с подземен паркинг на 2 нива, с възможност за закупуване на паркоместа на цена 40 000 евро. Всички цени са без ДДС!

CreditERA предоставя безплатна консултация и съдействие при финансиране на избрания от Вас имот от всички водещи банки в страната и ще договори най-добрите условия за вас!

Оферта 4004891
Особености:
  • Асансьор
  • Видео наблюдение
  • Контрол на достъпа
  • Саниран
Продава  Офис град София , Кръстова вада , 113 кв.м | 87386487 - изображение [2]
Продава  Офис град София , Кръстова вада , 113 кв.м | 87386487 - изображение [3]
Продава  Офис град София , Кръстова вада , 113 кв.м | 87386487 - изображение [4]
Продава  Офис град София , Кръстова вада , 113 кв.м | 87386487 - изображение [5]Виж следващите 4 снимки
Цена

Цена на имота: 402 000 €

786 243,66 лв.

Цена на кв.м: 3557,522 €

6 957,91 лв. на кв.м

Абонирай ме за известия за промяна в цената
Локация

град София, Кръстова вада

Статистика
  • 48разглеждания
  • 0добавяния в Бележника
Обявата е публикувана на 6 октомври 2025
Попитай продавача
088XXX... (покажи)

ГОЛД ЕСТЕЙТ ЕООД
град София бул.Прага 3
Продава Офис в град София, Кръстова вада, 113 кв.м
402 000 €
113 кв.м3-ти Тухла, 2025 г.
call20889115777