Продава  2-стаен град София , Красно село , 64 кв.м | 97701929
6 снимки

Продава 2-стаен в град София, Красно село, 64 кв.м

178 870
349 839,31 лв.
Цената е с включено ДДС
Квадратура: 64 кв.мЕтаж: 5-ти Вид строителство: Тухла, 2026 г.
ТЕЦ: ДАГаз: НЕ
Описание на имота:
ЖИЛИЩЕТО СЕ ПРЕДЛАГА БЕЗ КОМИСИОННА ОТ КУПУВАЧА! ЦЕНИ ОТ ИНВЕСТИТОР! ВЕЧЕ С АКТ 14, УДОСТОВЕРЕНИЕ ПО чл. 181 ОТ ЗУТ.
Апартаментът е част от новострояща се сграда в близост до пазар Красно село, метростанция Красно село, основни пътни артерии като бул. Цар Борис III , бул. България , бул. Гоце Делчев , бул. Житница и др.
Проектът е с РЗП 4710 кв.м и се състои от сутерен, партер, с разположени на него търговски обекти и 7 жилищни етажа, с добре позиционирани и функционално разпределени двустайни, тристайни и четиристайни апартаменти, както и един с характерисиките на мезонет. В сградата е предвидено да бъдат изградени 22 подземни, 9 надземни паркоместа и 2 гаража.
Изключително високо качество при използваните строителни материали и при изпълнение на строително-монтажните дейности. Монолитна конструкция със стоменобетонни носещи елементи, плочи и тухлени зидове; външни стени 25 см, вътрешни стени 12.5 см; фасадата е със силикатна мазилка и декоративни елементи, цокъл на целия първи етаж от облицоващи фиброциментни плочи; подземен паркинг е с под от шлайфан бетон с разграфени паркоместа и автоматична гаражна врата, летящо крило; общи части с висок клас гранит или гранитогресни плочи, и парапети от метал и стъкло; асансьор за 6 човека KONE или Orona; 5-камерна дограма; инсталации, съобразени с изискванията по БДС.
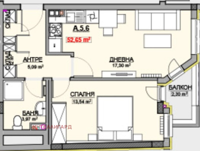
Жилището се състои от:
1. Антре 5,09 кв.м.
2. Дневна с кухня и трапезария 17,30 кв.м.
3. Спалня 13,54 кв.м.
4. От двете стаи се излиза на балкон с площ от 2,30 кв.м.
5. Баня с тоалетна 3,97 кв.м.
6. Склад 2 кв.м.
Площта на апартамента с общите части е 63,70 кв.м., а чистата застроена площ е 52,65 кв.м.
В същата многофамилна жилищна сграда Агенцията предлага и други двустайни, тристайни и многостайни жилища.
Агенция Интеллигард си партнира със строителни фирми, които са се доказали на пазара с високо качество на строителство. Агенцията предлага своите експертни услуги юридически, инженерни и всичко необходимо в цялостния процес по избор,покупка, продажба, отдаване под наем, така че клиентите да бъдат сигурни и спокойни, че правят правилния избор в условията на техния защитен интерес. Разполагаме с възможности и да окажем необходимото съдействие на клиента, в случай, че има нужда от банково финансиране.
Гъвкави схеми на плащане според възможностите и желание на клиента! Агенцията предлага и други апартаменти в сградата!
За повече информация, Моля обадете се на предоставения телефон!
Изберете интелигентното решение!
Особености:
  • Асансьор
  • С гараж
  • С паркинг
  • Интернет връзка
  • Видео наблюдение
  • Контрол на достъпа
  • Охрана
  • Саниран
  • В затворен комплекс
Продава  2-стаен град София , Красно село , 64 кв.м | 97701929 - изображение [2]
Продава  2-стаен град София , Красно село , 64 кв.м | 97701929 - изображение [3]
Продава  2-стаен град София , Красно село , 64 кв.м | 97701929 - изображение [4]
Продава  2-стаен град София , Красно село , 64 кв.м | 97701929 - изображение [5]Виж следващите 2 снимки
Цена

Цена на имота: 178 870 €

349 839,31 лв.

Цена на кв.м: 2794,844 €

5 466,24 лв. на кв.м

Абонирай ме за известия за промяна в цената
Локация

град София, Красно село

Статистика
  • 29разглеждания
  • 0добавяния в Бележника
Обявата е публикувана на 17 октомври 2025
Попитай продавача
088XXX... (покажи)
ИНТЕЛЛИГАРД
град София Булевард 'Цар Борис III', 128
Продава 2-стаен в град София, Красно село, 64 кв.м
178 870 €
64 кв.м5-ти Тухла, 2026 г.
call20885816803