Продава  2-стаен област Бургас , гр. Созопол , 58 кв.м | 99092046
5 снимки

Продава 2-стаен в област Бургас, гр. Созопол, 58 кв.м

VIP
61 340
119 970,61 лв.
Цената е без ДДС
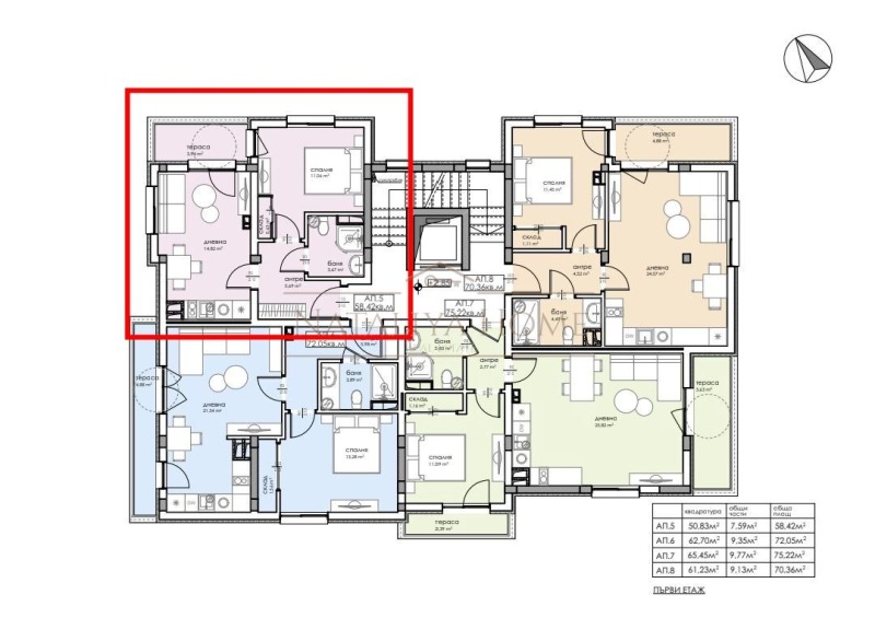
Квадратура: 58 кв.мЕтаж: 2-ри Вид строителство: Тухла, 2027 г.
ТЕЦ: -Газ: -
Описание на имота:
Предлагаме за продажба двустаен апартамент в предстоящо строителство в град Созопол.

Апартаментът е с площ от 58,42 кв.м., разположен на втори етаж. Имотът се състои от входно антре, всекидневна с кухненски бокс, спалня, баня с тоалетна, склад и тераса. Жилището е с северно изложение. Апартаментът се продава на тапа, с възможност завършване до ключ по желание на клиента. Към жилището се предлага възможност за закупуване на открито паркомясто на цена 8 000 евро или място в подземен гараж на цена 10 000 евро. Сградата ще бъде изпълнена в съвременен стил, с висококачествени материали и технологии, гарантиращи комфорт и дълготрайност.

Район Мисаря е предпочитана зона за живеене и инвестиция в Созопол, благодарение на спокойната си атмосфера, просторните улици и бързия достъп до центъра на града и стария град. Наблизо се намират магазини, заведения, автобусни спирки, а плажът Харманите е на пешеходно разстояние. Районът се отличава с ново строителство, добра инфраструктура и удобства за целогодишно живеене.

Созопол е един от най-старите и красиви градове по българското Черноморие, съчетаващ уникално културно-историческо наследство и модерна курортна атмосфера. Старият град впечатлява с калдъръмени улички, възрожденски къщи и археологически находки, а новата част на града предлага разнообразие от заведения, магазини и развлекателни обекти. Прекрасните плажове, съчетанието на море, природа и история, правят Созопол предпочитано място както за отдих, така и за инвестиция в недвижими имоти.

Начало на строителство: ноември 2025 г. Край на строителство: 2027 година.

Дирекно от инвеститор! Без комисиона от купувача! Съдействаме за банков кредит!
Особености:
  • Асансьор
Продава  2-стаен област Бургас , гр. Созопол , 58 кв.м | 99092046 - изображение [2]
Продава  2-стаен област Бургас , гр. Созопол , 58 кв.м | 99092046 - изображение [3]
Продава  2-стаен област Бургас , гр. Созопол , 58 кв.м | 99092046 - изображение [4]
Продава  2-стаен област Бургас , гр. Созопол , 58 кв.м | 99092046 - изображение [5]Виж следващите 1 снимки
Цена

Цена на имота: 61 340 €

119 970,61 лв.

Цена на кв.м: 1057,586 €

2 068,46 лв. на кв.м

Абонирай ме за известия за промяна в цената
Локация

област Бургас, гр. Созопол

Статистика
  • 2разглеждания
  • 0добавяния в Бележника
Обявата е публикувана на 6 октомври 2025
Попитай продавача
089XXX... (покажи)

НАТАЛИЯ ХОУМ
град Бургас кв.Сарафово, ул.Ангел Димитров 24А
Продава 2-стаен в област Бургас, гр. Созопол, 58 кв.м
61 340 €
58 кв.м2-ри Тухла, 2027 г.
call20896796546