ЕСТЕЙТ Груп продава ЕТАЖ от КЪЩА С ДВОР в сърцето на кв. Аспарухово, гр. Варна
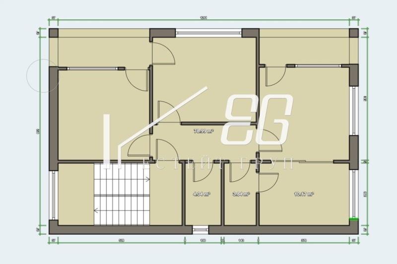
Представяме Ви етаж от къща /с прилежащите сутерен и мансарда/ с обща площ 210 кв.м. и двор 225 кв.м..
Този имот съчетава комфорт, функционалност и традиционен стил, идеален както за живеене, така и за инвестиция.
Основни характеристики на имота:
Етаж 2 - в момента функционира като четиристаен апартамент - 98 кв.м. подходящ за голямо семейство и осигуряващ комфорт и простор.
Мансарда след основен ремонт /нов покрив/ с изводи за ВиК, в идеално състояние, готова за разпределение според Вашите нужди. Може да бъде използвана като допълнително жилищно пространство, с възможност за преустройство в ателие, студио или офис. .49 кв.м.
Сутерен 59 кв.м. подходящ за склад, работилница или допълнително жилищно пространство, /в момента функционира като двустаен апартамент/.
Двор - в идеално състояние, красиво поддържан и оборудван с външна лятна кухня в национален стил.
Година на строителство: 1968 г.
Имотът е гъвкав и подходящ за различни инвестиционни стратегии.
Просторен барбекю кът и голяма пещ за печене, създаващи перфектна атмосфера за семейни събирания и приятелски вечери.
Има предвидено място за изграждане на басейн.
Възможност да се закупи и гараж с работилница.
Предимства:
Отличен потенциал за инвестиция възможност за обособяване на няколко жилищни единици или комбиниране на живеене и отдаване под наем.
Право на надствояване и дострояване на допълнителни постройки в имота.
Гъвкаво разпределение, което подхожда както за голямо семейство, така и за две или три отделни домакинства
Спокойна и зелена локация, с лесен достъп до центъра на Варна.
Близост до морето и парк, идеално за търсещите баланс между градска среда и природна атмосфера
Квартал Аспарухово:
Спокоен морски район с плаж, парк, магазини и всички нужни удобства.
Развита инфраструктура, удобен градски транспорт, училища, детски градини и здравни заведения.
Само на няколко минути от центъра на Варна, с бърз достъп по основни пътни артерии.
Не пропускайте възможността!
Тел. за контакт: 0878 599 399 Искра Вълкова
Giriş yapmak
+ Ücretsiz reklam

![Продава Етаж от къща град Варна , Аспарухово , 210 кв.м | 99279784 - изображение [2] — Imoti.info Продава Етаж от къща град Варна , Аспарухово , 210 кв.м | 99279784 - изображение [2]](http://imotstatic4.focus.bg/imot/photosimotbg/1/242/big/1i176034736510242_YI.jpg)
![Продава Етаж от къща град Варна , Аспарухово , 210 кв.м | 99279784 - изображение [3] — Imoti.info Продава Етаж от къща град Варна , Аспарухово , 210 кв.м | 99279784 - изображение [3]](http://imotstatic4.focus.bg/imot/photosimotbg/1/242/big/1i176034736510242_u0.jpg)
![Продава Етаж от къща град Варна , Аспарухово , 210 кв.м | 99279784 - изображение [4] — Imoti.info Продава Етаж от къща град Варна , Аспарухово , 210 кв.м | 99279784 - изображение [4]](http://imotstatic4.focus.bg/imot/photosimotbg/1/242/big/1i176034736510242_wB.jpg)
![Продава Етаж от къща град Варна , Аспарухово , 210 кв.м | 99279784 - изображение [5] — Imoti.info Продава Етаж от къща град Варна , Аспарухово , 210 кв.м | 99279784 - изображение [5]](http://imotstatic4.focus.bg/imot/photosimotbg/1/242/big/1i176034736510242_zN.jpg)
![Продава Етаж от къща град Варна , Аспарухово , 210 кв.м | 99279784 - изображение [6] — Imoti.info Продава Етаж от къща град Варна , Аспарухово , 210 кв.м | 99279784 - изображение [6]](http://imotstatic4.focus.bg/imot/photosimotbg/1/242/big/1i176034736510242_I4.jpg)
![Продава Етаж от къща град Варна , Аспарухово , 210 кв.м | 99279784 - изображение [7] — Imoti.info Продава Етаж от къща град Варна , Аспарухово , 210 кв.м | 99279784 - изображение [7]](http://imotstatic4.focus.bg/imot/photosimotbg/1/242/big/1i176034736510242_fZ.jpg)
![Продава Етаж от къща град Варна , Аспарухово , 210 кв.м | 99279784 - изображение [8] — Imoti.info Продава Етаж от къща град Варна , Аспарухово , 210 кв.м | 99279784 - изображение [8]](http://imotstatic4.focus.bg/imot/photosimotbg/1/242/big/1i176034736510242_vF.jpg)
![Продава Етаж от къща град Варна , Аспарухово , 210 кв.м | 99279784 - изображение [9] — Imoti.info Продава Етаж от къща град Варна , Аспарухово , 210 кв.м | 99279784 - изображение [9]](http://imotstatic4.focus.bg/imot/photosimotbg/1/242/big/1i176034736510242_tx.jpg)
![Продава Етаж от къща град Варна , Аспарухово , 210 кв.м | 99279784 - изображение [10] — Imoti.info Продава Етаж от къща град Варна , Аспарухово , 210 кв.м | 99279784 - изображение [10]](http://imotstatic4.focus.bg/imot/photosimotbg/1/242/big/1i176034736510242_a5.jpg)
![Продава Етаж от къща град Варна , Аспарухово , 210 кв.м | 99279784 - изображение [11] — Imoti.info Продава Етаж от къща град Варна , Аспарухово , 210 кв.м | 99279784 - изображение [11]](http://imotstatic4.focus.bg/imot/photosimotbg/1/242/big/1i176034736510242_8N.jpg)
![Продава Етаж от къща град Варна , Аспарухово , 210 кв.м | 99279784 - изображение [12] — Imoti.info Продава Етаж от къща град Варна , Аспарухово , 210 кв.м | 99279784 - изображение [12]](http://imotstatic4.focus.bg/imot/photosimotbg/1/242/big/1i176034736510242_5Y.jpg)
![Продава Етаж от къща град Варна , Аспарухово , 210 кв.м | 99279784 - изображение [13] — Imoti.info Продава Етаж от къща град Варна , Аспарухово , 210 кв.м | 99279784 - изображение [13]](http://imotstatic4.focus.bg/imot/photosimotbg/1/242/big/1i176034736510242_fl.jpg)
![Продава Етаж от къща град Варна , Аспарухово , 210 кв.м | 99279784 - изображение [14] — Imoti.info Продава Етаж от къща град Варна , Аспарухово , 210 кв.м | 99279784 - изображение [14]](http://imotstatic4.focus.bg/imot/photosimotbg/1/242/big/1i176034736510242_u2.jpg)
![Продава Етаж от къща град Варна , Аспарухово , 210 кв.м | 99279784 - изображение [15] — Imoti.info Продава Етаж от къща град Варна , Аспарухово , 210 кв.м | 99279784 - изображение [15]](http://imotstatic4.focus.bg/imot/photosimotbg/1/242/big/1i176034736510242_IK.jpg)
![Продава Етаж от къща град Варна , Аспарухово , 210 кв.м | 99279784 - изображение [16] — Imoti.info Продава Етаж от къща град Варна , Аспарухово , 210 кв.м | 99279784 - изображение [16]](http://imotstatic4.focus.bg/imot/photosimotbg/1/242/big/1i176034736510242_5T.jpg)
![Продава Етаж от къща град Варна , Аспарухово , 210 кв.м | 99279784 - изображение [17] — Imoti.info Продава Етаж от къща град Варна , Аспарухово , 210 кв.м | 99279784 - изображение [17]](http://imotstatic4.focus.bg/imot/photosimotbg/1/242/big/1i176034736510242_DP.jpg)









